Проект одноэтажного дома Дом из оцилиндрованного бревна 4,0х6,0 м под ключ (проект № 2 ИСТЬБА)
Площадь
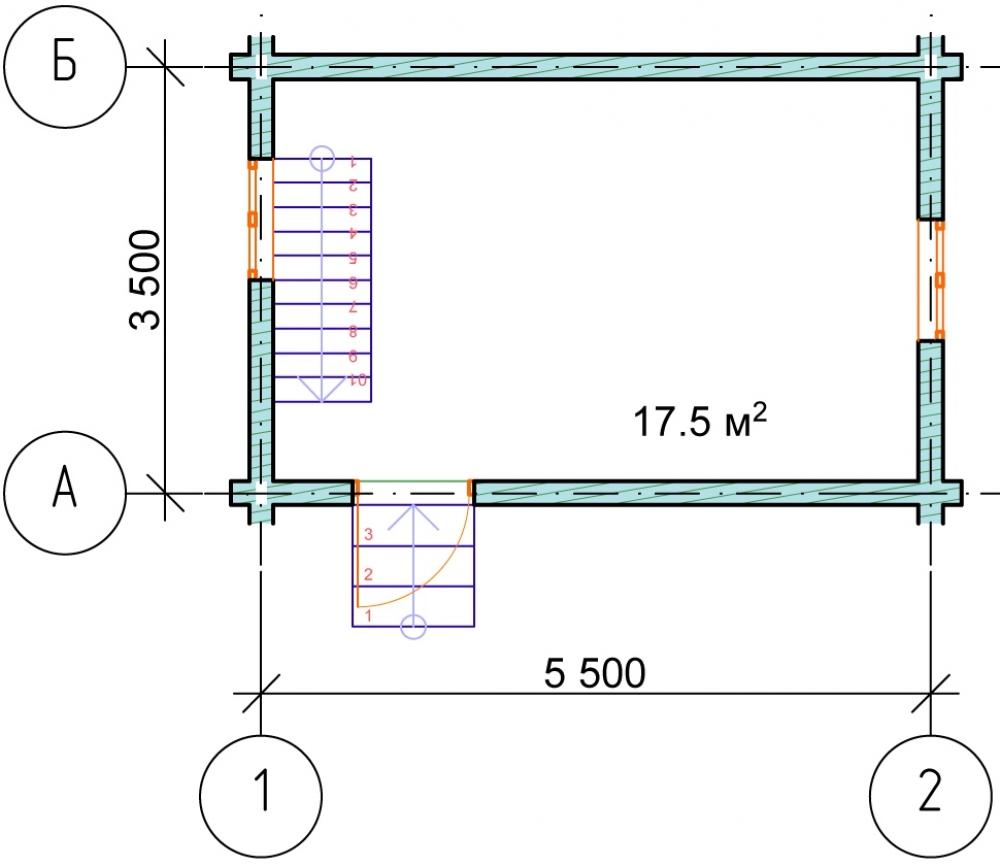
35 м 2
Размер дома:
4x6
Этажей:
1
Спален:
2
Санузел:
0
Гараж:
Нет
Баня:
Нет
Терраса:
Нет
Панорамные окна:
Нет
Мастер-спальня:
Нет
О проекте
Этот домик, собранный из круглых бревен и имеющий площадь 35 кв.м, словно создан для романтических выходных на природе. Компактные размеры идеально подходят для уединенного отдыха или создания уютной дачи. Каждая деталь подчеркнута естественной красотой и структурой древесины. Внутри царит атмосфера деревенского спокойствия, идеально способствующая восстановлению сил. Даже небольшой метраж превращается здесь в достоинствоХарактеристики
- Общая площадь: 35 м2
- Количество этажей: 1
- Стиль, разновидность: Дома в ином стиле
- Форма: Прямоугольные дома
- Тип кровли: Дома с иной крышей
- Отделка: Без отделки
- Размер: 4x6














