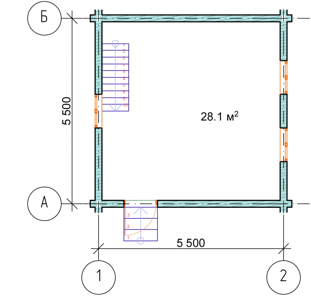
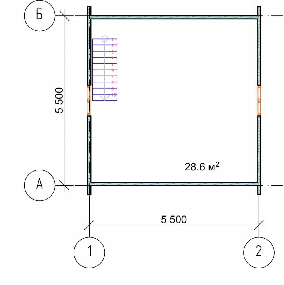
Проект одноэтажного дома Дом из оцилиндрованного бревна 6,0х6,0 м, пятистенок под ключ (проект № 4 ИСТЬБА)
Площадь
54 м 2
Размер дома:
6x6
Этажей:
1
Спален:
2
Санузел:
0
Гараж:
Нет
Баня:
Нет
Терраса:
Нет
Панорамные окна:
Нет
Мастер-спальня:
Нет
О проекте
Очарование классики воплотилось в деревянном доме площадью 54 кв.м. Натуральное бревно создаёт особую атмосферу тепла и даёт высочайшие показатели экологичности. Здесь пространство организовано так, что каждый метр служит удобству и уюту. Древесина ощущается на каждом шагу, внося в интерьер гармонию и спокойствие. Дом станет прекрасным местом для отдыха в окружении природы.Характеристики
- Общая площадь: 54 м2
- Количество этажей: 1
- Стиль, разновидность: Дома в ином стиле
- Форма: Квадратные дома
- Тип кровли: Дома с иной крышей
- Отделка: Без отделки
- Размер: 6x6
Отправьте свои контакты и мы расчитаем вам смету
Скорее всего вам подойдут следующие проекты домов:
Дом подходит для:
Проект одноэтажного дома Дом из оцилиндрованного бревна Д-57
Семья с одним ребенком
Дом подходит для:
Дом подходит для:
Дом подходит для:














