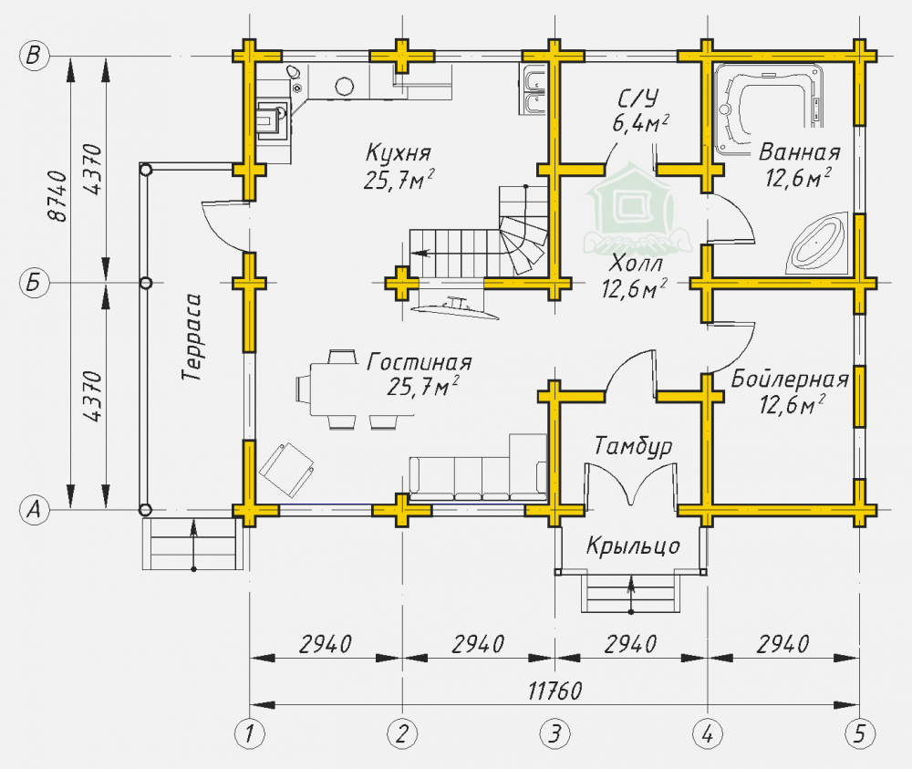
Проект двухэтажного дома Дом из оцилиндрованного бревна 8.7х11.7
Площадь
216 м 2
Размер дома:
Этажей:
2
Спален:
2
Санузел:
0
Гараж:
Нет
Баня:
Нет
Терраса:
Нет
Панорамные окна:
Нет
Мастер-спальня:
Нет
О проекте
В архитектуре удачно сочетаются актуальные тенденции и уютная атмосфера.Площадь в 186 м² удовлетворит требования современной семьи. Дом спроектирован в духе дома в классическом стиле. Двухэтажная удобная планировка делает зонирование более логичным. Выбор каркаса обусловлен его теплоизоляционными свойствами.Характеристики
- Общая площадь: 216 м2
- Количество этажей: 2
- Стиль, разновидность: Дома в ином стиле
- Форма: Квадратные дома
- Тип кровли: Дома с иной крышей
- Отделка: Без отделки
Отправьте свои контакты и мы расчитаем вам смету
Скорее всего вам подойдут следующие проекты домов:
Дом подходит для:
Дом подходит для:
Дом подходит для:










