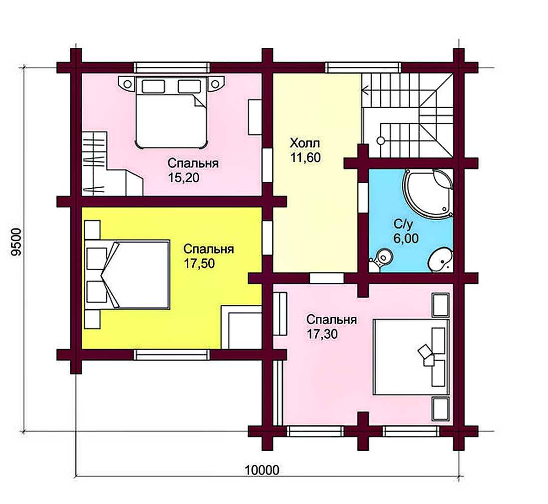
Проект двухэтажного дома Дом из оцилиндрованного бревна 9500х10000 мм
Площадь
155 м 2
Размер дома:
10x10
Этажей:
2
Спален:
3
Санузел:
0
Гараж:
Нет
Баня:
Нет
Терраса:
Нет
Панорамные окна:
Нет
Мастер-спальня:
Нет
О проекте
Бревенчатый дом площадью 155 м² с тремя спальнями предлагает комфорт для семьи. Двухэтажная планировка позволяет рационально использовать пространство. Натуральные материалы делают интерьер тёплым и уютным. Проект идеален для загородного проживания.Характеристики
- Общая площадь: 155 м2
- Количество этажей: 2
- Стиль, разновидность: Дома в стиле Модерн
- Форма: Квадратные дома
- Тип кровли: Дома с двускатной крышей
- Отделка: Без отделки
- Размер: 10x10
Отправьте свои контакты и мы расчитаем вам смету
Скорее всего вам подойдут следующие проекты домов:
Дом подходит для:
Дом подходит для:
Дом подходит для:










