Ваш город:

Проект двухэтажного дома Дом из профилированного бруса 6 х 6

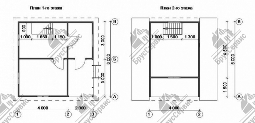
Площадь: 58 м2
Размер: 6x6
Дом подходит для:
Семья с одним ребенком
Этажей:
2
Стены:
Кровля:
Ондулин
Цена:
Оставить заявку
Площадь
58 м 2
Размер дома:
6x6
Этажей:
2
Спален:
2
Санузел:
0
Гараж:
Нет
Баня:
Нет
Терраса:
Нет
Панорамные окна:
Нет
Мастер-спальня:
Нет
О проекте
Архитектура, в которой даже технические помещения имеют эстетическую ценность. 58 м², где всё логично, удобно и на месте. Количество спален — 2, делая планировку гибкой. В качестве кровли использована ондулин — материал, проверенный временем. Стены из Брус хорошо держат тепло и защищают от шума.

Характеристики
  • Общая площадь: 58 м2
  • Количество этажей: 2
  • Стиль, разновидность: Дома в ином стиле
  • Форма: Квадратные дома
  • Тип кровли: Дома с шатровой крышей
  • Отделка: Без отделки
  • Размер: 6x6
Отправьте свои контакты и мы расчитаем вам смету
Прикрепить документ
Скорее всего вам подойдут следующие проекты домов:
Добавить к сравнению
Добавить в избранное
Изображение
Изображение
Дом подходит для:
Семья с одним ребенком
Добавить к сравнению
Добавить в избранное
Изображение
Изображение
Дом подходит для:
Семья с одним ребенком
Добавить к сравнению
Добавить в избранное
Изображение
Изображение
Изображение
Изображение
Изображение
Дом подходит для:
Семья с одним ребенком