Проект двухэтажного дома Дом из профилированного бруса Проект Модерн
Площадь
244 м 2
Размер дома:
11x12
Этажей:
2
Спален:
4
Санузел:
0
Гараж:
Нет
Баня:
Нет
Терраса:
Нет
Панорамные окна:
Нет
Мастер-спальня:
Нет
О проекте
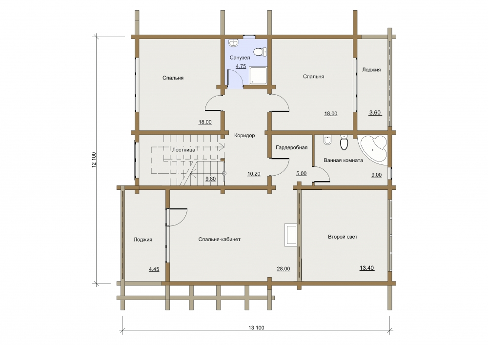
Дом из профилированного бруса площадью 244 м² с четырьмя спальнями отличается продуманной планировкой и современным стилем. Натуральные стены делают его теплым и надежным. Проект подойдет для тех, кто ценит простор и удобство. Внутреннее пространство организовано так, чтобы максимально использовать каждый метр.Характеристики
- Общая площадь: 244 м2
- Количество этажей: 2
- Стиль, разновидность: Дома в стиле Модерн
- Форма: Квадратные дома
- Тип кровли: Дома с двускатной крышей
- Отделка: Без отделки
- Размер: 11x12
Отправьте свои контакты и мы расчитаем вам смету
Скорее всего вам подойдут следующие проекты домов:
Дом подходит для:
Дом подходит для:
Дом подходит для:









