Проект одноэтажного дома Дом из СИП панелей Глория
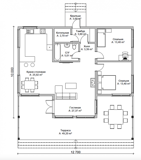
Площадь
85 м 2
Размер дома:
10x11
Этажей:
1
Спален:
0
Санузел:
0
Гараж:
Нет
Баня:
Нет
Терраса:
Нет
Панорамные окна:
Нет
Мастер-спальня:
Нет
О проекте
Кухня, где готовить легко даже тем, кто не любит готовить. 85 м² позволяют создать как уединённые, так и общие зоны. Каркас делает дом надёжным при любой погоде. Одноэтажная эргономичная планировка создаёт идеальные условия для жизни всей семьи. металлочерепица придаёт дому выразительность и надёжность.Характеристики
- Общая площадь: 85 м2
- Количество этажей: 1
- Стиль, разновидность: Дома в ином стиле
- Форма: Прямоугольные дома
- Тип кровли: Дома с многощипцовой крышей
- Отделка: Без отделки
- Размер: 10x11
Отправьте свои контакты и мы расчитаем вам смету
Скорее всего вам подойдут следующие проекты домов:
Дом подходит для:











