Проект одноэтажного дома Дом за 100 дней. Одноэтажная версия
Дом подходит для:
Площадь
114 м 2
Размер дома:
10x10
Этажей:
1
Спален:
2
Санузел:
2
Гараж:
Нет
Баня:
Нет
Терраса:
Нет
Панорамные окна:
Нет
Мастер-спальня:
Нет
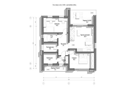
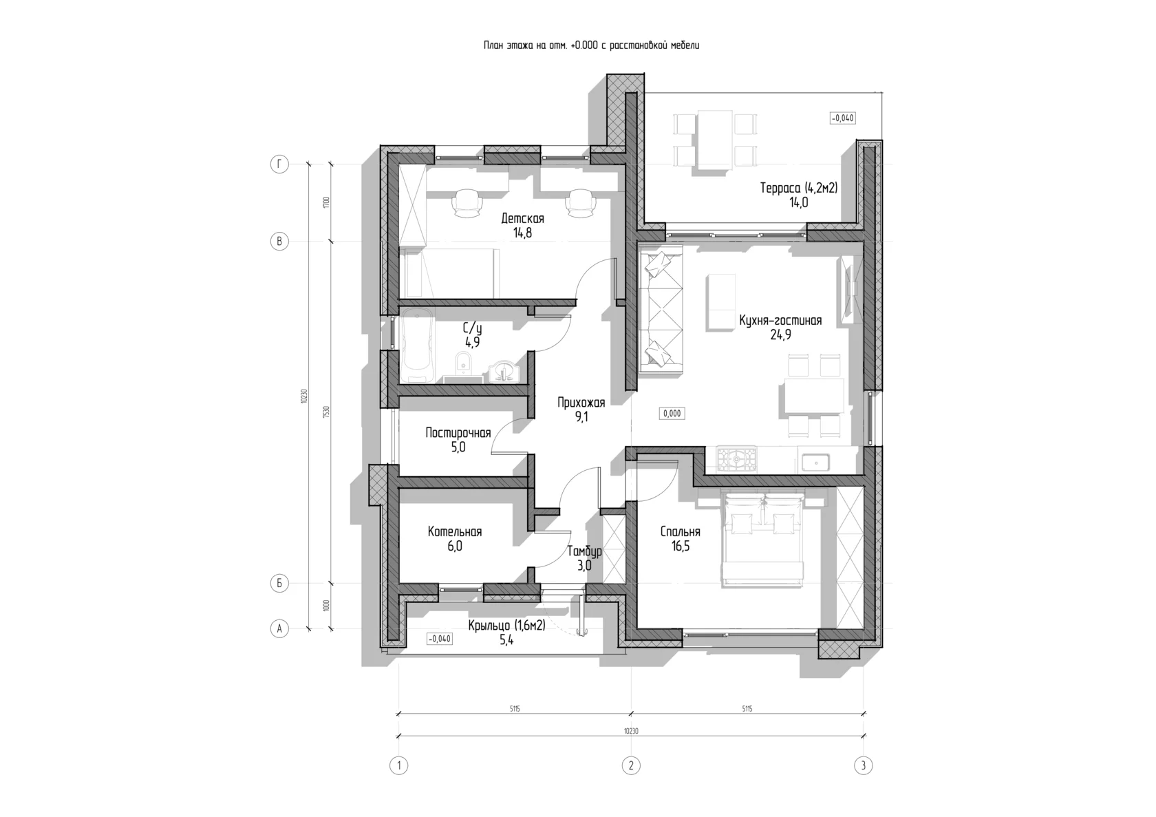
Планировка
Фасады
О проекте
Жилье площадью 114 м² — это место, где простор и уют идут рука об руку, создавая гармонию. Жилая площадь 97 м² предназначена для большой семьи, сочетая свет и практичность в каждом метре. Газобетон в стенах обеспечивает надежность и тепло, делая дом энергоэффективным. Это пространство, где царит покой, а интерьер радует своей продуманностью.Характеристики
- Общая площадь: 114 м2
- Жилая площадь: 97 м2
- Количество этажей: 1
- Гараж: нет
- Площадь кровли: 115 м2
- Отделка: Без отделки
- Размер: 10x10
- Фундамент: Дома с железобетонным свайным фундаментом
Материалы и перечень работ
- Тип фундамента - Монолитная плита
- Конструкция наружных стен - Монолитные. Толщина 150 мм.
- Тип перекрытия - Монолитная плита
- Покрытие кровли - ПВХ мембрана
- В стоимость не входит
- В стоимость не входит
- Декоративная штукатурка
- Тип фундамента - Монолитная плита
- Конструкция наружных стен - Монолитные. Толщина 150 мм.
- Тип перекрытия - Монолитная плита
- Покрытие кровли - ПВХ мембрана
- В стоимость не входит
- В стоимость не входит
- Декоративная штукатурка
Что еще входит в стоимость:
Отправьте свои контакты и мы расчитаем вам смету
Скорее всего вам подойдут следующие проекты домов:
Проект одноэтажного дома Дом id-115224
Семья с одним ребенком
Дом подходит для:
Дом подходит для:
Проект одноэтажного дома Дом id-115261
Семья с двумя детьми
Дом подходит для:
Дом подходит для:
Проект одноэтажного дома Дом id-115291
Семья с одним ребенком
Дом подходит для:
Дом подходит для:


























