Проект одноэтажного дома Домик в деревне
Дом подходит для:
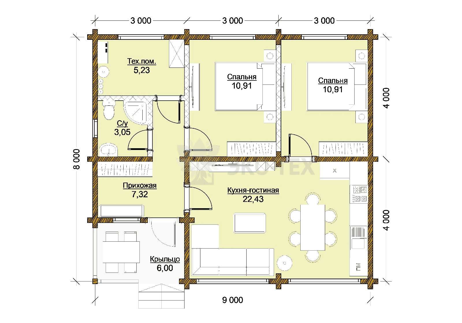
Площадь
72 м 2
Размер дома:
8x9
Этажей:
1
Спален:
2
Санузел:
1
Гараж:
Нет
Баня:
Нет
Терраса:
Нет
Панорамные окна:
Нет
Мастер-спальня:
Нет
Планировка
Характеристики
- Общая площадь: 72 м2
- Жилая площадь: 46 м2
- Количество этажей: 1
- Гараж: нет
- Площадь кровли: 79 м2
- Отделка: Без отделки
- Размер: 8x9
- Фундамент: Дома со свайным фундаментом
Материалы и перечень работ
- Фундамент железобетонные сваи сечение 200*200 мм, L (длина) — 3 000 мм
- Привязка строения, геодезическая разбивка осей, нивелирование;
- Разметка свайного поля;
- Железобетонные сваи сечением 200х200 мм, высотой 3 метра;
- Забивка свай механическим способом;
- Устройство обвязки на фундамент (брус сечением 200×200 мм. хвойных пород);
- Устройство лаг пола и балок перекрытия (брус сечением 100 x200 мм. хвойных пород);
- Монтаж стен и внутренних перегородок (по проекту) - Оцилиндрованное бревно хвойных пород Ø 22см. (Северный лес, Архангельская область). Возможен диаметр до 300 мм, уточняйте стоимость по телефону;
- Межвенцовый утеплитель (льно-джутовое волокно);
- Расходные материалы: нагель деревянный, оцинкованный крепёж узел Сила, скобы, стяжные шпильки, домкраты-компенсаторы, метизы, ГСМ и пр.
- Устройство стропильной системы (доска сечением 50×200 мм. хвойных пород) с шагом согласно проектной документации, но не более 60 см.;
- Устройство обрешетки (доска сечением 25×150 мм хвойных пород);
- Устройство временной кровли из рубероида или гидроизоляционной пленки.
- В стоимость не входит
- В стоимость не входит
- В стоимость не входит
- Фундамент железобетонные сваи сечение 200*200 мм, L (длина) — 3 000 мм
- Привязка строения, геодезическая разбивка осей, нивелирование;
- Разметка свайного поля;
- Железобетонные сваи сечением 200х200 мм, высотой 3 метра;
- Забивка свай механическим способом;
- Устройство обвязки на фундамент (брус сечением 200×200 мм. хвойных пород);
- Устройство лаг пола и балок перекрытия (брус сечением 100 x200 мм. хвойных пород);
- Монтаж стен и внутренних перегородок (по проекту) - Оцилиндрованное бревно хвойных пород Ø 22см. (Северный лес, Архангельская область). Возможен диаметр до 300 мм, уточняйте стоимость по телефону;
- Межвенцовый утеплитель (льно-джутовое волокно);
- Расходные материалы: нагель деревянный, оцинкованный крепёж узел Сила, скобы, стяжные шпильки, домкраты-компенсаторы, метизы, ГСМ и пр.
- Устройство стропильной системы (доска сечением 50×200 мм. хвойных пород) с шагом согласно проектной документации, но не более 60 см.;
- Устройство обрешетки (доска сечением 25×150 мм хвойных пород);
- Устройство временной кровли из рубероида или гидроизоляционной пленки.
- В стоимость не входит
- В стоимость не входит
- В стоимость не входит
Что еще входит в стоимость:
Отправьте свои контакты и мы расчитаем вам смету
Скорее всего вам подойдут следующие проекты домов:
Дом подходит для:
Дом подходит для:
Дом подходит для:








