Ваш город:

Проект одноэтажного дома Доу

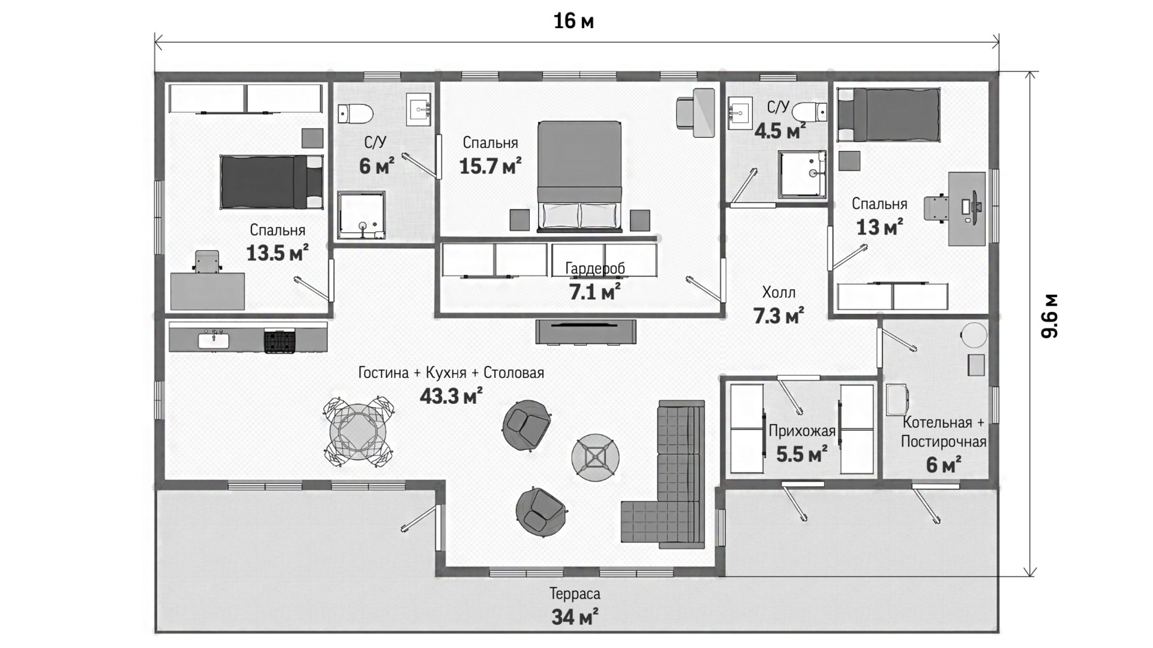
Площадь: 137 м2
Размер: 16x9.6
Дом подходит для:
Семья с двумя детьми
Этажей:
1
Стены:
Кровля:
Металлочерепица
Цена:
Оставить заявку
Площадь
137 м 2
Размер дома:
16x9.6
Этажей:
1
Спален:
3
Санузел:
2
Гараж:
Нет
Баня:
Нет
Терраса:
Да
Панорамные окна:
Нет
Мастер-спальня:
Нет
Фасады
О проекте
Просторный дом площадью 137 м² в стиле фахверк сочетает в себе современный дизайн с семейным уютом. 106 м² жилой зоны организованы с заботой о каждом члене семьи, создавая атмосферу тепла и защищенности. Каркасная технология обеспечивает надежность, а продуманные детали интерьера делают пространство живым и гармоничным. Это место, где стиль служит комфорту и удобству.

Характеристики
  • Общая площадь: 137 м2
  • Жилая площадь: 106 м2
  • Количество этажей: 1
  • Гараж: нет
  • Площадь кровли: 143 м2
  • Стиль, разновидность: Дома в стиле Фахверк
  • Форма: Квадратные дома
  • Тип кровли: Дома с многощипцовой крышей
  • Пристрой: Дома с верандой
  • Отделка: С инженерными коммуникациями
  • Фундамент: Дома со свайным фундаментом
Материалы и перечень работ
  • Ж/Б сваи 150х150х3000 мм.
  • Гидроизоляция: рубероид 2 слоя.
  • Обвязка: Три доски на ребро 35х190мм (антисептирована).
  • Внешние стены каркас дома: из строганной доски 35х190 мм и дополнительным, по стенам монтируется вентиляционный зазор из строганного бруска 20х40мм. По вентиляционному зазору монтируется ОСБ-9мм.
  • Паро-ветроизоляция стены: Изоспан А и Б. «Изоспан Б проклеивается армированным скотчем».
  • Лаги: из строганной доска 35х190мм, шаг 58-59мм, (антисептированы)
  • Полы черновые: обрезная доска 22х100мм с шагом 30мм.
  • По стенам горизонтально монтируется имитация бруса 15х135 мм , потолок подшивается вагонкой штиль. В санузлах монтаж обрешётки из доски 20х90мм шагом 40 см. Отделка стен ГКЛВ-9мм в два слоя в шахматном порядке, потолок ГКЛВ-9мм в 1 слой.
  • Волнистый лист (металлочерепица), с установкой снегозадержателей (по наружным стенам дома) в цвет кровли и водосточной системы пвх до уровня цоколя.
  • Стропильная конструкция: из строганной доски 35х190мм., шаг 58-59см.
  • Обрешетка: строганная доска 20х90мм, (подрешетник монтируется через контр рейку из строганного бруска 40х40мм).
  • Окна: ПВХ, с двухкамерными стеклопакетами, размеры (ш/в): согласно проекту дома, (у двухстворчатых окон одна створка глухая-открывание правое, трехстворчатое окно открывание левая правая створка) белого цвета. С установкой белых пластиковых подоконников и металлических белых отлив. Монтаж окон производится без внутренних чистовых откосов.
  • Двери: Входная металлическая без терморазрыва с утепленным полотном. Межкомнатные двери филенчатые (без фурнитуры).Эко-Шпон (без монтажа, без фурнитуры).
  • Вентиляция: В кровле устанавливаются вентиляционные выходы в цвет кровли. Место установки определяется с Заказчиком на монтаже. Вентиляционные выходы монтируются без сборки шахт и последующего проведения внутри дома. Чердачное помещение со стороны фронтонов устанавливаются вентиляционные решетки, цвет белый.
  • Электропроводка: Четыре точки на помещение (выключатель одноклавишный, розетка одинарная, патрон е 27, распаечная коробка). Силовая розеточная группа провод ВВгНг 3х2.5 прокладка в гофре 16д. Освещение провод ВВГнг 3х1.5 прокладка в гофре 16д (розетки и выключатели в стоимость не входят). Щит врезной-накладной в техническом помещении на 12 позиций. Автоматы ABB вводной трехполюсной 25амп. Автоматы 2 шт на свет 10амп поэтажно. Автомат на розетки 16амп не более 8 шт.
  • Канализация и разводка воды: прокладка труб полипропилен открытым способом ( Холодная вода: в санузлах унитаз-2шт, раковина-2шт, душ или ванна 2шт, раковина кухня-1шт. Горячая вода: в санузлах раковина-2шт,, душ или ванна 2шт, кухня-1шт). бойлер накопительный «Термекс» 100л. Колба-Фильтр грубой очистки. Вывод под цоколь труб канализационных с последующим соединением трасс.
  • Отопление: Батареи панельные размеры по тепло-расчёту согласно кубатуре помещений. Трубы полипропилен белые монтаж открытым способом. Бак расширительный настенный. Коллекторная группа . Электро-котел отопления – Термика. Теплоноситель системы вода.
  • Внешняя отделка: HAUBERK производитель ТЕХНОНИКОЛЬ. Наружные углы из строганной доски 20х140мм, внутренний угол (при наличии) деревянный плинтус.
  • Ж/Б сваи 150х150х3000 мм.
  • Гидроизоляция: рубероид 2 слоя.
  • Обвязка: Три доски на ребро 35х190мм (антисептирована).
  • Внешние стены каркас дома: из строганной доски 35х190 мм и дополнительным, по стенам монтируется вентиляционный зазор из строганного бруска 20х40мм. По вентиляционному зазору монтируется ОСБ-9мм.
  • Паро-ветроизоляция стены: Изоспан А и Б. «Изоспан Б проклеивается армированным скотчем».
  • Лаги: из строганной доска 35х190мм, шаг 58-59мм, (антисептированы)
  • Полы черновые: обрезная доска 22х100мм с шагом 30мм.
  • По стенам горизонтально монтируется имитация бруса 15х135 мм , потолок подшивается вагонкой штиль. В санузлах монтаж обрешётки из доски 20х90мм шагом 40 см. Отделка стен ГКЛВ-9мм в два слоя в шахматном порядке, потолок ГКЛВ-9мм в 1 слой.
  • Волнистый лист (металлочерепица), с установкой снегозадержателей (по наружным стенам дома) в цвет кровли и водосточной системы пвх до уровня цоколя.
  • Стропильная конструкция: из строганной доски 35х190мм., шаг 58-59см.
  • Обрешетка: строганная доска 20х90мм, (подрешетник монтируется через контр рейку из строганного бруска 40х40мм).
  • Окна: ПВХ, с двухкамерными стеклопакетами, размеры (ш/в): согласно проекту дома, (у двухстворчатых окон одна створка глухая-открывание правое, трехстворчатое окно открывание левая правая створка) белого цвета. С установкой белых пластиковых подоконников и металлических белых отлив. Монтаж окон производится без внутренних чистовых откосов.
  • Двери: Входная металлическая без терморазрыва с утепленным полотном. Межкомнатные двери филенчатые (без фурнитуры).Эко-Шпон (без монтажа, без фурнитуры).
  • Вентиляция: В кровле устанавливаются вентиляционные выходы в цвет кровли. Место установки определяется с Заказчиком на монтаже. Вентиляционные выходы монтируются без сборки шахт и последующего проведения внутри дома. Чердачное помещение со стороны фронтонов устанавливаются вентиляционные решетки, цвет белый.
  • Электропроводка: Четыре точки на помещение (выключатель одноклавишный, розетка одинарная, патрон е 27, распаечная коробка). Силовая розеточная группа провод ВВгНг 3х2.5 прокладка в гофре 16д. Освещение провод ВВГнг 3х1.5 прокладка в гофре 16д (розетки и выключатели в стоимость не входят). Щит врезной-накладной в техническом помещении на 12 позиций. Автоматы ABB вводной трехполюсной 25амп. Автоматы 2 шт на свет 10амп поэтажно. Автомат на розетки 16амп не более 8 шт.
  • Канализация и разводка воды: прокладка труб полипропилен открытым способом ( Холодная вода: в санузлах унитаз-2шт, раковина-2шт, душ или ванна 2шт, раковина кухня-1шт. Горячая вода: в санузлах раковина-2шт,, душ или ванна 2шт, кухня-1шт). бойлер накопительный «Термекс» 100л. Колба-Фильтр грубой очистки. Вывод под цоколь труб канализационных с последующим соединением трасс.
  • Отопление: Батареи панельные размеры по тепло-расчёту согласно кубатуре помещений. Трубы полипропилен белые монтаж открытым способом. Бак расширительный настенный. Коллекторная группа . Электро-котел отопления – Термика. Теплоноситель системы вода.
  • Внешняя отделка: HAUBERK производитель ТЕХНОНИКОЛЬ. Наружные углы из строганной доски 20х140мм, внутренний угол (при наличии) деревянный плинтус.
Что еще входит в стоимость:
Фото и видеоотчет
Отправьте свои контакты и мы расчитаем вам смету
Прикрепить документ
Скорее всего вам подойдут следующие проекты домов:
Добавить к сравнению
Добавить в избранное
Изображение
Изображение
Изображение
Изображение
Изображение
Дом подходит для:
Для большой семьи
Добавить к сравнению
Добавить в избранное
Изображение
Изображение
Изображение
Изображение
Изображение
Дом подходит для:
Для большой семьи
Дом подходит для:
Семья с двумя детьми