Проект двухэтажного дома ДП-4
Дом подходит для:
Площадь
126 м 2
Размер дома:
9x9
Этажей:
2
Спален:
4
Санузел:
2
Гараж:
Нет
Баня:
Нет
Терраса:
Да
Панорамные окна:
Нет
Мастер-спальня:
Нет
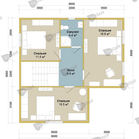
Планировка
Фасады
О проекте
Просторный дом из бруса площадью 126 м² создан для большой семьи. Жилая площадь в 104 м² предлагает комфорт и свободу пространства. Четыре спальни и два санузла обеспечивают все необходимое для совместного проживания. Добротность материалов и надежная конструкция делают этот дом по-настоящему семейным.Характеристики
- Общая площадь: 126 м2
- Жилая площадь: 104 м2
- Количество этажей: 2
- Гараж: нет
- Площадь кровли: 133 м2
- Форма: Квадратные дома
- Тип кровли: Дома с многощипцовой крышей
- Пристрой: Дома с верандой
- Отделка: Без отделки
- Размер: 9x9
Материалы и перечень работ
- В стоимость не входит
- Соединение углов в теплый угол (ласточкин хвост).
- Венцы скрепляются деревянными нагелями, в шахматном порядке.
- Фронтоны – проф. брус ест. влажности 145х145 мм. (до ригеля)
- Перегородки 1 и 2 этаж – проф. брус ест. влажности 145х95 мм., примыкание к внешним стенам «Ласточкин хвост».
- Балки пола и потолка – брус ест. влажности 100х150 мм., с шагом – 590 мм.
- Стропила – доска ест. влажности 50х150 мм., с шагом – 590 мм.
- Обрешетка – доска ест. влажности 25х150(100) мм.
- Подлёты и карнизы – 500 мм.
- Черновой пол - доска ест. влажности 25x150(100) мм.
- В стоимость не входит
- В стоимость не входит
- В стоимость не входит
- В стоимость не входит
- Соединение углов в теплый угол (ласточкин хвост).
- Венцы скрепляются деревянными нагелями, в шахматном порядке.
- Фронтоны – проф. брус ест. влажности 145х145 мм. (до ригеля)
- Перегородки 1 и 2 этаж – проф. брус ест. влажности 145х95 мм., примыкание к внешним стенам «Ласточкин хвост».
- Балки пола и потолка – брус ест. влажности 100х150 мм., с шагом – 590 мм.
- Стропила – доска ест. влажности 50х150 мм., с шагом – 590 мм.
- Обрешетка – доска ест. влажности 25х150(100) мм.
- Подлёты и карнизы – 500 мм.
- Черновой пол - доска ест. влажности 25x150(100) мм.
- В стоимость не входит
- В стоимость не входит
- В стоимость не входит
Что еще входит в стоимость:
Отправьте свои контакты и мы расчитаем вам смету
Скорее всего вам подойдут следующие проекты домов:
Проект двухэтажного дома Дом из клееного бруса с террасой и балконом. Проект Светово.
Для большой семьи
Дом подходит для:
Дом подходит для:
Дом подходит для:
Дом подходит для:











