Ваш город:

Проект двухэтажного дома Дрова

Площадь: 104 м2
Размер: 12х8
Дом подходит для:
Семья с двумя детьми
Этажей:
2
Стены:
Кровля:
Металлочерепица
Цена:
Оставить заявку
Площадь
104 м 2
Размер дома:
12х8
Этажей:
2
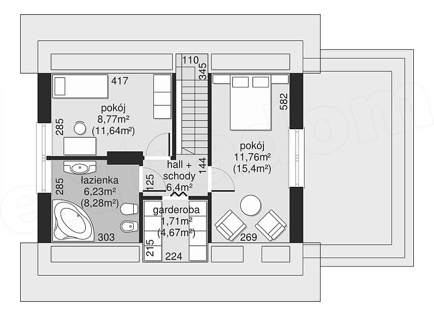
Спален:
3
Санузел:
2
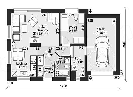
Гараж:
Да
Баня:
Нет
Терраса:
Нет
Панорамные окна:
Нет
Мастер-спальня:
Нет
Фасады
О проекте
Двухэтажный дом площадью 104 м² с жилыми 81 м² — это простор и уют для семьи с двумя детьми. Кирпичные стены дарят надежность, а три спальни и два санузла обеспечивают комфорт. Светлые интерьеры и продуманная планировка создают ощущение гармонии. Это место, где каждый найдет свой уголок.

Характеристики
  • Общая площадь: 104 м2
  • Жилая площадь: 81 м2
  • Количество этажей: 2
  • Гараж: 19,06
  • Площадь кровли: 111 м2
  • Отделка: Без отделки
Материалы и перечень работ
  • 1 вариант. Монолитная плита. Монолитная армированная ж/б плита с ребрами жесткости вниз на песчаной подушке. Арматурный каркас из высокопрочной арматуры класса АIII Ø 12 мм по ГОСТ 5781-82 в два уровня согласно СНиП 52-01-2003. Бетон марки М-300 (B22) по ГОСТ 7473-2010.
  • 2 вариант. Сильноармированная утепленная плита высотой 300мм на песчаной подушке 300мм. Армированная сетка AIII Ø 10, в два ряда. Утепление 50 мм ЭППС под плитой. Бетон марки М-300 (B22) по ГОСТ 7473-2010.
  • Наружные стены из керамического щелевого кирпича.
  • Толщина стен 380 мм.
  • Армирование кладки.
  • Железобетонные оконные и дверные перемычки.
  • Монолитный железобетонный пояс с утеплением.
  • Стропильная система из бруса 50 х 200 мм.
  • Подкровельная гидроизоляционная мембрана.
  • Контробрешетка из бруса 50 х 50 мм, обрешетка из бруса 25 х 100 мм.
  • Система «Вентилируемая кровля».
  • Металлочерепица с покрытием полиэстер. Толщина стали 0,5мм. Доборные элементы кровли в соответствии с инструкцией производителя (ендовы, планки примыкания, коньковые и торцевые планки).
  • Дверные проемы в соответствии с проектом.
  • Окна и балконные двери ПВХ.
  • Оконный профиль REHAU (Германия). Двойной стеклопакет — 3 стекла.
  • Точки канализации на 1-ом этаже строения (прокладка под пятном застройки и отвод на 2 метра за границу фундамента).
  • Ввод воды в бойлерную (прокладка ПНД трубы и отвод на 2 метра).
  • Монтаж закладной под ввод электрокабеля.
  • Монтаж фанового стояка в кирпичной шахте с выводом трубы на крышу.
  • Технологические отверстия под монтаж шахт дымохода и вытяжных вентканалов.
  • В стоимость не входит
  • 1 вариант. Монолитная плита. Монолитная армированная ж/б плита с ребрами жесткости вниз на песчаной подушке. Арматурный каркас из высокопрочной арматуры класса АIII Ø 12 мм по ГОСТ 5781-82 в два уровня согласно СНиП 52-01-2003. Бетон марки М-300 (B22) по ГОСТ 7473-2010.
  • 2 вариант. Сильноармированная утепленная плита высотой 300мм на песчаной подушке 300мм. Армированная сетка AIII Ø 10, в два ряда. Утепление 50 мм ЭППС под плитой. Бетон марки М-300 (B22) по ГОСТ 7473-2010.
  • Наружные стены из керамического щелевого кирпича.
  • Толщина стен 380 мм.
  • Армирование кладки.
  • Железобетонные оконные и дверные перемычки.
  • Монолитный железобетонный пояс с утеплением.
  • Стропильная система из бруса 50 х 200 мм.
  • Подкровельная гидроизоляционная мембрана.
  • Контробрешетка из бруса 50 х 50 мм, обрешетка из бруса 25 х 100 мм.
  • Система «Вентилируемая кровля».
  • Металлочерепица с покрытием полиэстер. Толщина стали 0,5мм. Доборные элементы кровли в соответствии с инструкцией производителя (ендовы, планки примыкания, коньковые и торцевые планки).
  • Дверные проемы в соответствии с проектом.
  • Окна и балконные двери ПВХ.
  • Оконный профиль REHAU (Германия). Двойной стеклопакет — 3 стекла.
  • Точки канализации на 1-ом этаже строения (прокладка под пятном застройки и отвод на 2 метра за границу фундамента).
  • Ввод воды в бойлерную (прокладка ПНД трубы и отвод на 2 метра).
  • Монтаж закладной под ввод электрокабеля.
  • Монтаж фанового стояка в кирпичной шахте с выводом трубы на крышу.
  • Технологические отверстия под монтаж шахт дымохода и вытяжных вентканалов.
  • В стоимость не входит
Что еще входит в стоимость:
Фото и видеоотчет
Отправьте свои контакты и мы расчитаем вам смету
Прикрепить документ
Скорее всего вам подойдут следующие проекты домов: