Проект одноэтажного дома Дублин
Дом подходит для:
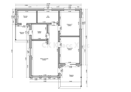
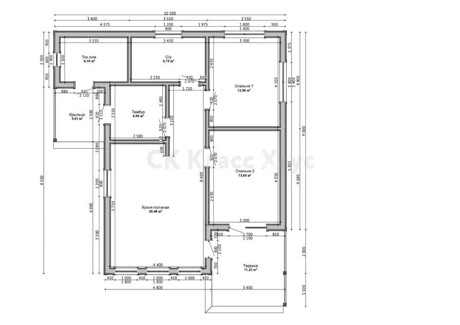
Площадь
73 м 2
Размер дома:
11x11
Этажей:
1
Спален:
2
Санузел:
1
Гараж:
Нет
Баня:
Нет
Терраса:
Нет
Панорамные окна:
Нет
Мастер-спальня:
Нет
Планировка
Характеристики
- Общая площадь: 73 м2
- Жилая площадь: 61 м2
- Количество этажей: 1
- Гараж: нет
- Площадь кровли: 79 м2
- Отделка: Без отделки
- Размер: 11x11
Материалы и перечень работ
- В стоимость не входит
- Силовой каркас строганная доска камерной сушки
- Утепление пола и потолка 200 мм, каменная вата Rockwool Каркас Баттс
- Ветрозащита Ondutis PRO A
- Кровельный материал металлочерепица
- Окна Rehau, двухкамерные
- Двери металлические и ПВХ согласно проекту
- В стоимость не входит
- Утепление внешних стен 150 мм, каменная вата Rockwool Каркас Баттс
- Наружная отделка скандинавская доска с поднятым ворсом 20х140 мм
- В стоимость не входит
- Силовой каркас строганная доска камерной сушки
- Утепление пола и потолка 200 мм, каменная вата Rockwool Каркас Баттс
- Ветрозащита Ondutis PRO A
- Кровельный материал металлочерепица
- Окна Rehau, двухкамерные
- Двери металлические и ПВХ согласно проекту
- В стоимость не входит
- Утепление внешних стен 150 мм, каменная вата Rockwool Каркас Баттс
- Наружная отделка скандинавская доска с поднятым ворсом 20х140 мм
Что еще входит в стоимость:
Отправьте свои контакты и мы расчитаем вам смету
Скорее всего вам подойдут следующие проекты домов:
Дом подходит для:
Дом подходит для:
Дом подходит для:














