Проект одноэтажного дома Дубровка
Дом подходит для:
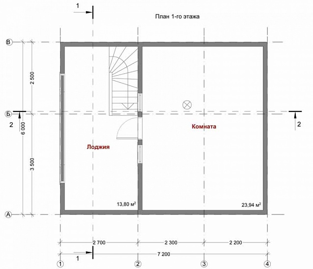
Площадь
89 м 2
Размер дома:
8х12
Этажей:
1
Спален:
2
Санузел:
1
Гараж:
Нет
Баня:
Нет
Терраса:
Нет
Панорамные окна:
Нет
Мастер-спальня:
Нет
Планировка
Характеристики
- Общая площадь: 89 м2
- Жилая площадь: 64 м2
- Количество этажей: 1
- Гараж: нет
- Площадь кровли: 93 м2
- Отделка: Без отделки
- Фундамент: Дома со свайным фундаментом
Материалы и перечень работ
- Стандартный свайно-винтовой фундамент D108х2500 с ручным монтажем на нормальных грунтах.
- Обвязка свай антисептированным брусом ЕВ 150х200.
- Цокольное, межэтажное и чердачное перекрытие из доски 50х200 камерной сушки с шагом не более 590 мм
- Наружные стены (фасады), а так же внутренние несущие стены из доски 50х150 камерной сушки.
- Внутренние перегородки из доски 50х100 камерной сушки.
- Монтаж закладных из пароизоляции СиЖ-П между внешними стенами/перекрытиями/стропильной системой внутренними перегородками для закрытия контура в соответствии с стандартом пароизоляции "СиЖ"
- Стропильная система из доски 50х200 камерной сушки с шагом не более 590 мм.
- Влаговетрозащитная мембрана ONDUTISS Smart AM
- Вентзазор из бруска 50х50 мм естественной влажности
- Обрешетка крыши из доски 25х100 естественной влажности
- Кровельный волнистый лист Ондулин/ Профлист 0,45 мм Покрытие PE
- В стоимость не входит
- Проходные элементы в котельной и сан.узле для ввода коммуникаций в помещение
- В стоимость не входит
- Стандартный свайно-винтовой фундамент D108х2500 с ручным монтажем на нормальных грунтах.
- Обвязка свай антисептированным брусом ЕВ 150х200.
- Цокольное, межэтажное и чердачное перекрытие из доски 50х200 камерной сушки с шагом не более 590 мм
- Наружные стены (фасады), а так же внутренние несущие стены из доски 50х150 камерной сушки.
- Внутренние перегородки из доски 50х100 камерной сушки.
- Монтаж закладных из пароизоляции СиЖ-П между внешними стенами/перекрытиями/стропильной системой внутренними перегородками для закрытия контура в соответствии с стандартом пароизоляции "СиЖ"
- Стропильная система из доски 50х200 камерной сушки с шагом не более 590 мм.
- Влаговетрозащитная мембрана ONDUTISS Smart AM
- Вентзазор из бруска 50х50 мм естественной влажности
- Обрешетка крыши из доски 25х100 естественной влажности
- Кровельный волнистый лист Ондулин/ Профлист 0,45 мм Покрытие PE
- В стоимость не входит
- Проходные элементы в котельной и сан.узле для ввода коммуникаций в помещение
- В стоимость не входит
Что еще входит в стоимость:
Отправьте свои контакты и мы расчитаем вам смету
Скорее всего вам подойдут следующие проекты домов:
Дом подходит для:
Дом подходит для:
Дом подходит для:













