Проект одноэтажного дома Дуплекс Коммунарка
Дом подходит для:
Площадь
126 м 2
Размер дома:
11.2 x 12.2
Этажей:
1
Спален:
5
Санузел:
2
Гараж:
Нет
Баня:
Нет
Терраса:
Да
Панорамные окна:
Нет
Мастер-спальня:
Нет
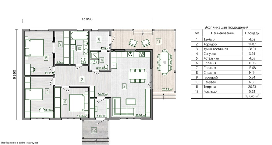
Планировка
Фасады
О проекте
Дуплекс площадью 126 м² с жилыми 96 м² — идеальное решение для большой семьи, где важны простор и единство. Металлочерепица на кровле подчеркивает лаконичность и надежность, а свайный фундамент гарантирует долговечность. Пять спален и два санузла создают условия для комфортной жизни. Этот дом — воплощение семейного тепла и практичности.Характеристики
- Общая площадь: 126 м2
- Жилая площадь: 96 м2
- Количество этажей: 1
- Гараж: нет
- Площадь кровли: 139 м2
- Форма: Квадратные дома
- Тип кровли: Дома с четырехскатной крышей (вальмовой)
- Пристрой: Дома с верандой
- Отделка: С черновой отделкой
- Фундамент: Дома со свайным фундаментом
Материалы и перечень работ
- Фундамент свайно-винтовой, обвязка брусом 200х200 мм., «возможно изменение типа фундамента».
- Производство и сборка домокомплекта по финской каркасной технологии «каркас повышенной надежности» с толщиной стен 150 мм., «возможно изменение толщины стен до 250 мм».
- Паро/гидро/шумоизоляция Изоспан. Проклейка стыков скотчем.
- Стяжки, анкера, кронштейны, домкраты, гвозди, саморезы.
- Половые лаги 50х200 мм., либо 100х200 мм., в зависимости от длины пролёта.
- Стропильная система (усиленная). Стропило 50х200 мм., с шагом 590 мм.
- Кровельный материал (металлочерепица) Grand Line «возможно изменение типа кровли».
- Обработка антисептическими и огне/био/защитными составами.
- Окна — REHAU thermo-design, 60-й профиль, 4 камеры. Сопротивление теплопередаче 0,78 м2 °С/Вт «возможно изменение типа окон».
- Входная дверь — металлическая, утепленная. Толщина стали 1,5 мм., 3 контура уплотнения, 2 замка (производство Россия) «возможно изменение типа двери».
- В стоимость не входит
- Внешняя обшивка стен — влагостойкая ОСП 9 мм.
- Утепление внешних и капитальных стен дома 150 мм., внутренних перегородок 100 мм., пола 150 мм., межэтажного перекрытия 100 мм., крыши 200 мм. Утеплитель ROCKWOOL «возможно изменение толщины утепления до 250 мм., добавление перекрёстного утепления, различные варианты утеплителя».
- Фундамент свайно-винтовой, обвязка брусом 200х200 мм., «возможно изменение типа фундамента».
- Производство и сборка домокомплекта по финской каркасной технологии «каркас повышенной надежности» с толщиной стен 150 мм., «возможно изменение толщины стен до 250 мм».
- Паро/гидро/шумоизоляция Изоспан. Проклейка стыков скотчем.
- Стяжки, анкера, кронштейны, домкраты, гвозди, саморезы.
- Половые лаги 50х200 мм., либо 100х200 мм., в зависимости от длины пролёта.
- Стропильная система (усиленная). Стропило 50х200 мм., с шагом 590 мм.
- Кровельный материал (металлочерепица) Grand Line «возможно изменение типа кровли».
- Обработка антисептическими и огне/био/защитными составами.
- Окна — REHAU thermo-design, 60-й профиль, 4 камеры. Сопротивление теплопередаче 0,78 м2 °С/Вт «возможно изменение типа окон».
- Входная дверь — металлическая, утепленная. Толщина стали 1,5 мм., 3 контура уплотнения, 2 замка (производство Россия) «возможно изменение типа двери».
- В стоимость не входит
- Внешняя обшивка стен — влагостойкая ОСП 9 мм.
- Утепление внешних и капитальных стен дома 150 мм., внутренних перегородок 100 мм., пола 150 мм., межэтажного перекрытия 100 мм., крыши 200 мм. Утеплитель ROCKWOOL «возможно изменение толщины утепления до 250 мм., добавление перекрёстного утепления, различные варианты утеплителя».
Что еще входит в стоимость:
Отправьте свои контакты и мы расчитаем вам смету
Скорее всего вам подойдут следующие проекты домов:
Дом подходит для:
Дом подходит для:
Дом подходит для:














