Проект двухэтажного дома ДВ-143.01
Дом подходит для:
Площадь
143 м 2
Размер дома:
8x10
Этажей:
2
Спален:
4
Санузел:
2
Гараж:
Нет
Баня:
Нет
Терраса:
Нет
Панорамные окна:
Нет
Мастер-спальня:
Нет
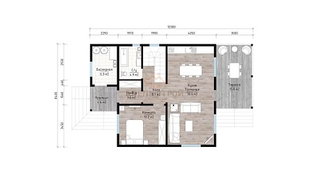
Планировка
Фасады
О проекте
Дом площадью 143 м² с жилой зоной 117 м² предлагает комфорт и простор для большой семьи. Четыре спальни и два санузла создают уютное пространство, а каркасные стены дарят тепло и тишину. Продуманная планировка делает жизнь здесь удобной и гармоничной. Это дом, где каждая деталь продумана для вашего уюта.Характеристики
- Общая площадь: 143 м2
- Жилая площадь: 117 м2
- Количество этажей: 2
- Гараж: нет
- Площадь кровли: 150 м2
- Отделка: Без отделки
- Размер: 8x10
- Фундамент: Дома со свайным фундаментом
Материалы и перечень работ
- Тип фундамента — Металлические сваи
- Длина сваи — 2500 мм
- Диаметр сваи — 108 мм, лопасть — 300 мм
- Металлический оголовок 200х200
- Полы СИП 174 мм
- Стыковочный брус для панелей пола СИП 174 мм 75х145мм
- Стыковочный сухой строганный брус для внешних СИП стен 75х145 мм
- Внутренние несущие стены из сухой строганной доски 45х145 мм Внутренние перегородки из сухой строганной доски 45х95 мм
- Межэтажное перекрытие из сухой строганной доски 45х195 мм с настилом ОСП 22 мм
- Стропильная система из обрезной доски 50х150 мм, обработанная биозащитным составом
- Гидроизоляционная мембрана (отвод конденсата из подкровельного пространства)
- Контробрешетка 50х50 мм, обработанная биозащитным составом
- Карнизная планка и капельник в цвет крыши
- Металлочерепица Grandline, цвет на выбор
- В стоимость не входит
- В стоимость не входит
- В стоимость не входит
- Тип фундамента — Металлические сваи
- Длина сваи — 2500 мм
- Диаметр сваи — 108 мм, лопасть — 300 мм
- Металлический оголовок 200х200
- Полы СИП 174 мм
- Стыковочный брус для панелей пола СИП 174 мм 75х145мм
- Стыковочный сухой строганный брус для внешних СИП стен 75х145 мм
- Внутренние несущие стены из сухой строганной доски 45х145 мм Внутренние перегородки из сухой строганной доски 45х95 мм
- Межэтажное перекрытие из сухой строганной доски 45х195 мм с настилом ОСП 22 мм
- Стропильная система из обрезной доски 50х150 мм, обработанная биозащитным составом
- Гидроизоляционная мембрана (отвод конденсата из подкровельного пространства)
- Контробрешетка 50х50 мм, обработанная биозащитным составом
- Карнизная планка и капельник в цвет крыши
- Металлочерепица Grandline, цвет на выбор
- В стоимость не входит
- В стоимость не входит
- В стоимость не входит
Что еще входит в стоимость:
Отправьте свои контакты и мы расчитаем вам смету
Скорее всего вам подойдут следующие проекты домов:
Дом подходит для:
Дом подходит для:
Дом подходит для:












