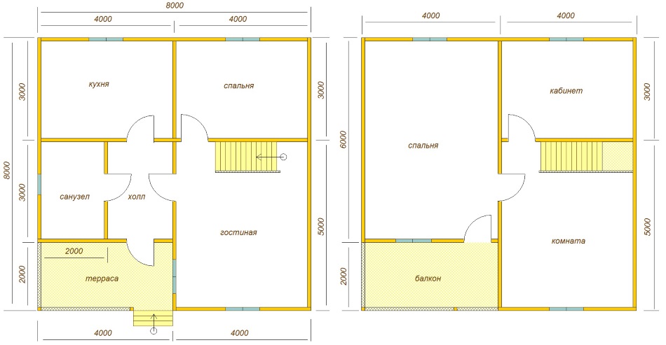
Проект двухэтажного дома Двухэтажный дом 8х8 (Д-20)
Площадь
128 м 2
Размер дома:
8x8
Этажей:
2
Спален:
2
Санузел:
0
Гараж:
Нет
Баня:
Нет
Терраса:
Нет
Панорамные окна:
Нет
Мастер-спальня:
Нет
О проекте
Интерьеры, где электропроводка продумана.В этих 128 м² легко организовать рабочую и зону отдыха. Дом спроектирован в духе дома в классическом стиле. Наличие 2 спальни удовлетворит запросы семьи с детьми. Выбор Бруса обусловлен его теплоизоляционными свойствами.Характеристики
- Общая площадь: 128 м2
- Количество этажей: 2
- Стиль, разновидность: Дома в ином стиле
- Форма: Квадратные дома
- Тип кровли: Дома с шатровой крышей
- Отделка: Без отделки
- Размер: 8x8
Отправьте свои контакты и мы расчитаем вам смету
Скорее всего вам подойдут следующие проекты домов:
Дом подходит для:
Дом подходит для:
Дом подходит для:














