Проект одноэтажного дома Джаспер
Дом подходит для:
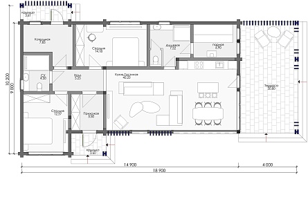
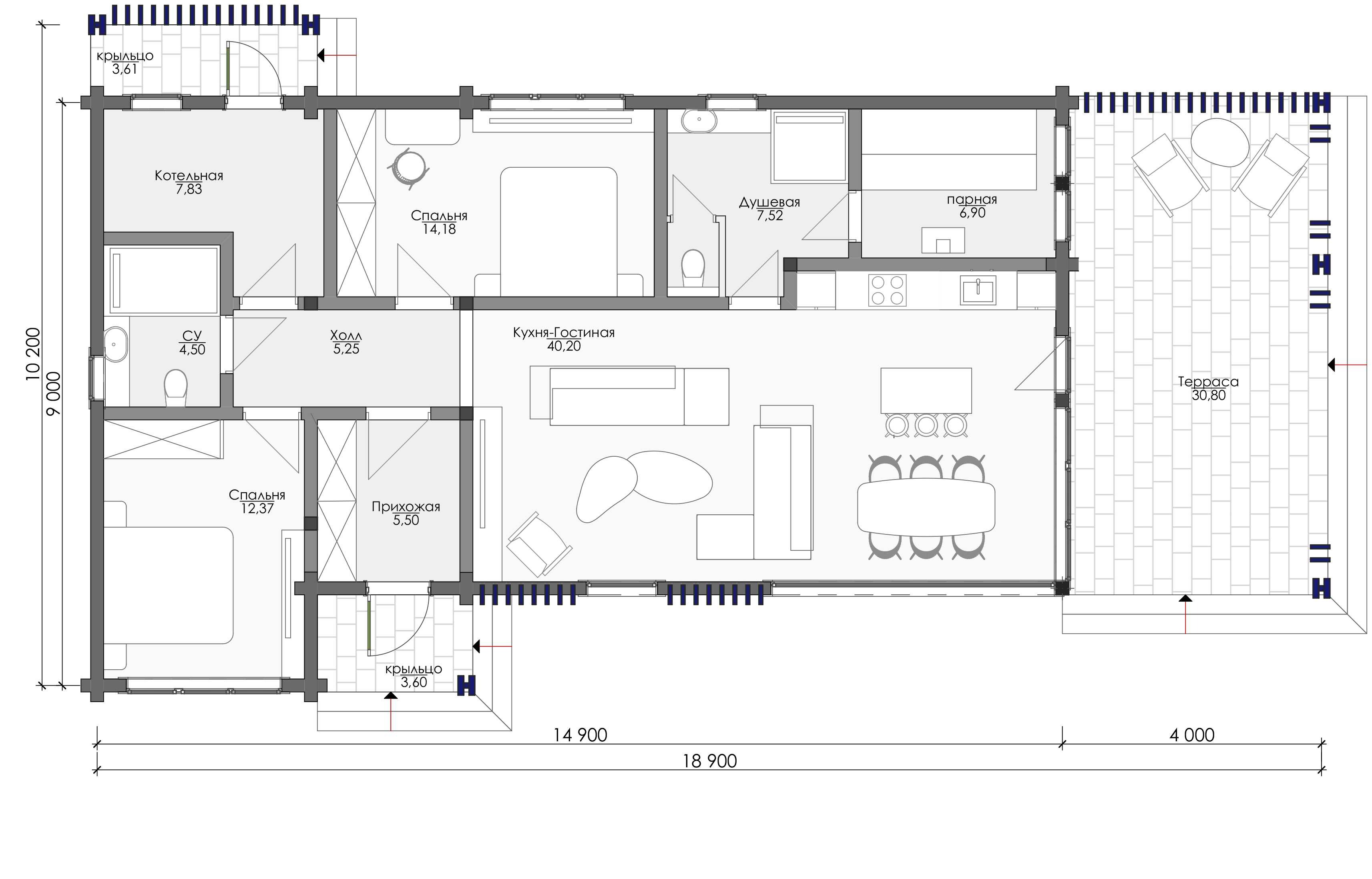
Площадь
150 м 2
Размер дома:
10,2х18,9
Этажей:
1
Спален:
2
Санузел:
2
Гараж:
Нет
Баня:
Нет
Терраса:
Да
Панорамные окна:
Нет
Мастер-спальня:
Нет
Планировка
Характеристики
- Общая площадь: 150 м2
- Жилая площадь: 112 м2
- Количество этажей: 1
- Гараж: нет
- Площадь кровли: 156 м2
- Форма: Квадратные дома
- Тип кровли: Дома с односкатной крышей
- Пристрой: Дома с террасой
- Отделка: С черновой отделкой
- Фундамент: Дома со свайным фундаментом
Материалы и перечень работ
- Железобетонные забивные сваи сечением 20x20 см длиной 3 метра из бетона высшего качества
- Привязка и разметка фундамента на участке
- Устройство обвязочного бруса на фундамент
- Гидроизоляция фундамента
- Домокомплект из клееного бруса 200x185 мм c замком "ласточкин хвост" (непродуваемый угол)
- Сборка домокомплекта на герметик
- Антисептирование бруса, обработка торцов воском
- Все расходные материалы для сборки
- Врезка балок пола 1 этажа (клееные балки)
- Устройство стропильной системы (стропила клееные сечением 75x240мм)
- Капитальная кровля с утеплением пенополиуренатом (напыление ППУ с закрытой ячейкой) и покрытием ПВХ мембраной
- Премиальные деревянные окна и двери (евробрус трехламельный 78, стеклопакет трехслойный 40 мм) с подготовкой проемов и монтажом
- В стоимость не входит
- В стоимость не входит
- Железобетонные забивные сваи сечением 20x20 см длиной 3 метра из бетона высшего качества
- Привязка и разметка фундамента на участке
- Устройство обвязочного бруса на фундамент
- Гидроизоляция фундамента
- Домокомплект из клееного бруса 200x185 мм c замком "ласточкин хвост" (непродуваемый угол)
- Сборка домокомплекта на герметик
- Антисептирование бруса, обработка торцов воском
- Все расходные материалы для сборки
- Врезка балок пола 1 этажа (клееные балки)
- Устройство стропильной системы (стропила клееные сечением 75x240мм)
- Капитальная кровля с утеплением пенополиуренатом (напыление ППУ с закрытой ячейкой) и покрытием ПВХ мембраной
- Премиальные деревянные окна и двери (евробрус трехламельный 78, стеклопакет трехслойный 40 мм) с подготовкой проемов и монтажом
- В стоимость не входит
- В стоимость не входит
Что еще входит в стоимость:
Отправьте свои контакты и мы расчитаем вам смету
Скорее всего вам подойдут следующие проекты домов:
Дом подходит для:
Дом подходит для:
Дом подходит для:














