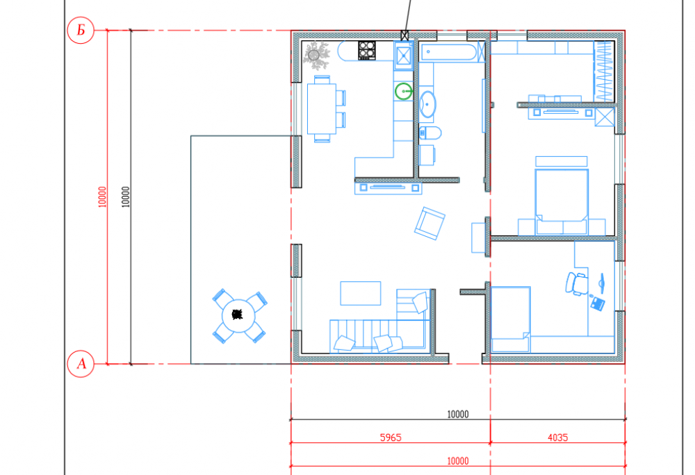
Проект одноэтажного дома Елизаветинская 100
Площадь
100 м 2
Размер дома:
10x10
Этажей:
1
Спален:
2
Санузел:
0
Гараж:
Нет
Баня:
Нет
Терраса:
Нет
Панорамные окна:
Нет
Мастер-спальня:
Нет
О проекте
Каркасный дом площадью 100 кв.м, проект «Елизаветинская 100», с двумя спальнями и одним этажом, отличается компактностью и уютом. Каркасные стены гарантируют быструю сборку, а металлочерепица — надежность. Дом подходит для небольшой семьи или дачного проживания. Его дизайн выполнен в финском стиле.Характеристики
- Общая площадь: 100 м2
- Количество этажей: 1
- Стиль, разновидность: Финские дома
- Форма: Квадратные дома
- Тип кровли: Дома с шатровой крышей
- Отделка: Без отделки
- Размер: 10x10
Отправьте свои контакты и мы расчитаем вам смету
Скорее всего вам подойдут следующие проекты домов:
Дом подходит для:
Дом подходит для:
Дом подходит для:










