Проект двухэтажного дома Еловка
Дом подходит для:
Площадь
144 м 2
Размер дома:
13 x 9
Этажей:
2
Спален:
4
Санузел:
2
Гараж:
Нет
Баня:
Нет
Терраса:
Нет
Панорамные окна:
Нет
Мастер-спальня:
Нет
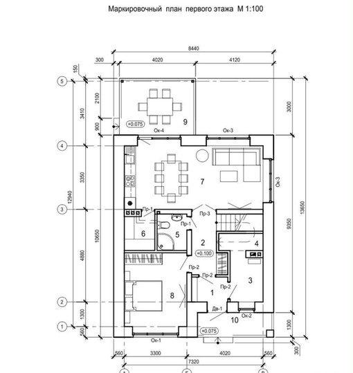
Планировка
Фасады
О проекте
Просторный дом площадью 144 м² с жилыми 113 м² — это идеальное решение для большой семьи. Газобетонные стены обеспечивают тепло и тишину, создавая атмосферу уюта и защищенности. Светлые комнаты и рациональная планировка делают пространство живым и дышащим. Здесь царит гармония между современным стилем и домашним теплом.Характеристики
- Общая площадь: 144 м2
- Жилая площадь: 113 м2
- Количество этажей: 2
- Гараж: нет
- Площадь кровли: 149 м2
- Отделка: Без отделки
- Фундамент: Дома со свайным фундаментом
Материалы и перечень работ
- Свайно ростверковый
- Наружные и внутренние несущие стены Газобетонный блок 375мм
- Перегородки газобетонный блок 100мм
- Перемычки сборные железобетонные
- Армопояс монолит
- Сборные железобетонные плиты перекрытия
- Сборные железобетонные плиты перекрытия По деревянным балкам с утеплением
- Конструкция крыши деревянная с обработкой огнебиозащитными составами
- Металлочерепица Гранд Лайн
- Двухкамерный стеклопакет. Профиль 70мм
- В стоимость не входит
- Наружная отделка фасадов керамический кирпич лицевой Производства «ВКЗ», «Терекс»
- Свайно ростверковый
- Наружные и внутренние несущие стены Газобетонный блок 375мм
- Перегородки газобетонный блок 100мм
- Перемычки сборные железобетонные
- Армопояс монолит
- Сборные железобетонные плиты перекрытия
- Сборные железобетонные плиты перекрытия По деревянным балкам с утеплением
- Конструкция крыши деревянная с обработкой огнебиозащитными составами
- Металлочерепица Гранд Лайн
- Двухкамерный стеклопакет. Профиль 70мм
- В стоимость не входит
- Наружная отделка фасадов керамический кирпич лицевой Производства «ВКЗ», «Терекс»
Что еще входит в стоимость:
Отправьте свои контакты и мы расчитаем вам смету
Скорее всего вам подойдут следующие проекты домов:
Проект двухэтажного дома Дом id-114662
Семья с двумя детьми
Дом подходит для:
Дом подходит для:
Проект двухэтажного дома Дом id-125898
Семья с двумя детьми
Дом подходит для:
Дом подходит для:
Проект двухэтажного дома Дом id-124856
Семья с двумя детьми
Дом подходит для:
Дом подходит для:


























