Проект одноэтажного дома Эрви
Дом подходит для:
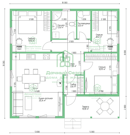
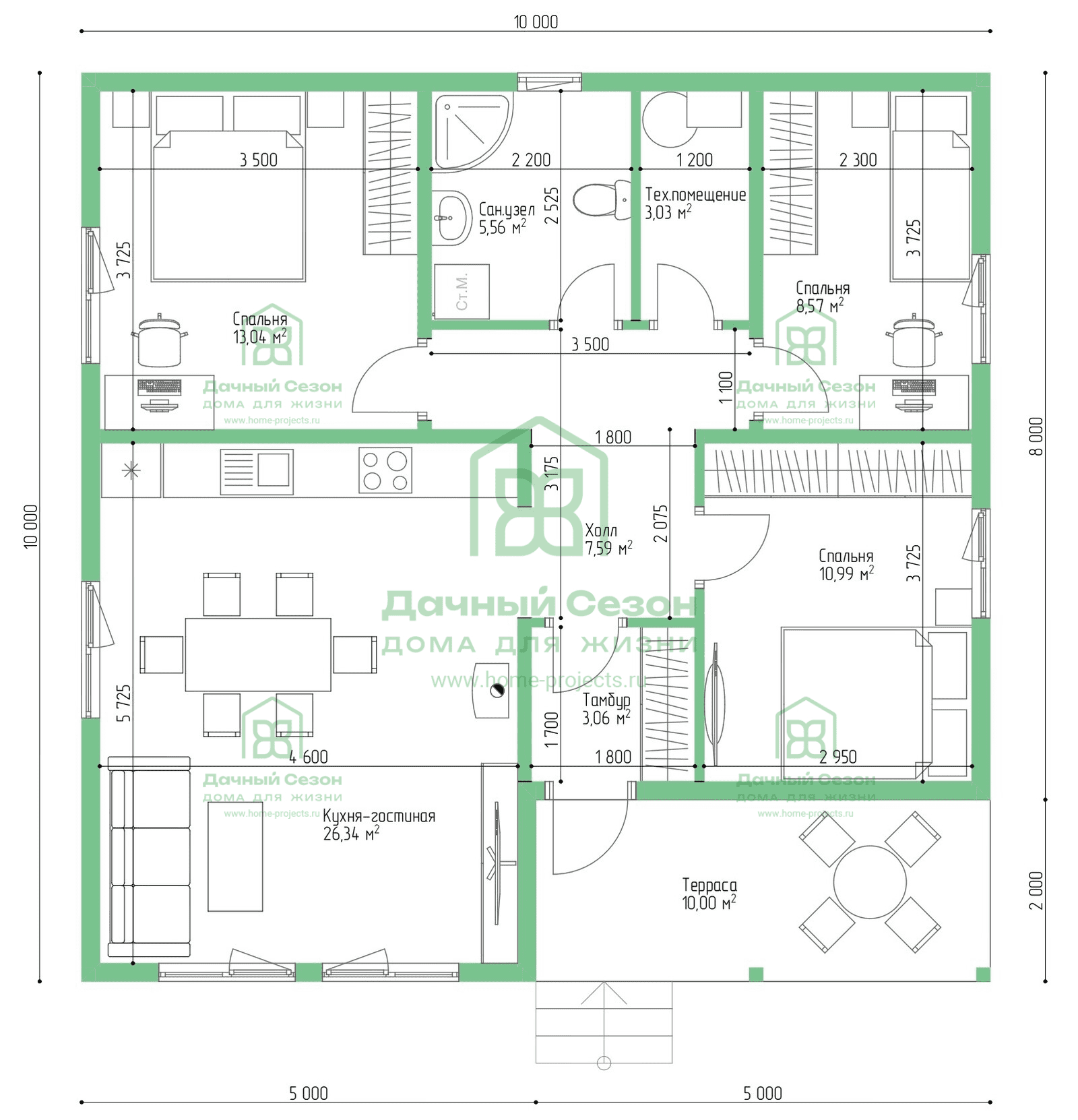
Площадь
90 м 2
Размер дома:
10x10
Этажей:
1
Спален:
3
Санузел:
1
Гараж:
Нет
Баня:
Нет
Терраса:
Нет
Панорамные окна:
Нет
Мастер-спальня:
Нет
Планировка
Характеристики
- Общая площадь: 90 м2
- Жилая площадь: 68 м2
- Количество этажей: 1
- Гараж: нет
- Площадь кровли: 95 м2
- Отделка: Без отделки
- Размер: 10x10
- Фундамент: Дома со свайно-ростверковым фундаментом
Материалы и перечень работ
- Монолитный ленточный свайно-ростверковый фундамент: монтаж деревянной опалубки для заливки бетонной смеси; вязка арматурного каркаса диаметром 12мм с загибом по углам с закреплением проектного положения в бетоне; бетон заводского изготовления марки М-300
- Наружные несущие стены из газобетона 300 мм (375 мм)
- Внутренние несущие стены из газобетона 300 мм (375 мм)
- Межкомнатные перегородки из газобетона 100 мм
- Оформленные перемычками оконные проёмы
- Кладка блоков осуществляется на кладочный клей, армирование блоков через каждые три ряда сеткой, монтаж оконных и дверных перемычек из металлического уголка 100х100х5мм
- Металлочерепица, оцинкованная, толщина стали 0.5 мм (полиэстер)
- Стропильная система 45х195 мм
- 2-камерный стеклопакет Rehau, фурнитура Roto, антимоскитные сетки
- Входная металлическая (1 шт.): дверь с антивандальным покрытием с молотковым напылением снаружи, с декоративной МДФ-панелью изнутри, утеплённая, с глазком и цилиндровым замком. Производство Россия. (снаружи: Антик Медный/внутри: МДФ Беленый дуб; 2 замка,
- Закладные утепленные гильзы под канализацию
- Закладные утепленные гильзы под воду
- В стоимость не входит
- Монолитный ленточный свайно-ростверковый фундамент: монтаж деревянной опалубки для заливки бетонной смеси; вязка арматурного каркаса диаметром 12мм с загибом по углам с закреплением проектного положения в бетоне; бетон заводского изготовления марки М-300
- Наружные несущие стены из газобетона 300 мм (375 мм)
- Внутренние несущие стены из газобетона 300 мм (375 мм)
- Межкомнатные перегородки из газобетона 100 мм
- Оформленные перемычками оконные проёмы
- Кладка блоков осуществляется на кладочный клей, армирование блоков через каждые три ряда сеткой, монтаж оконных и дверных перемычек из металлического уголка 100х100х5мм
- Металлочерепица, оцинкованная, толщина стали 0.5 мм (полиэстер)
- Стропильная система 45х195 мм
- 2-камерный стеклопакет Rehau, фурнитура Roto, антимоскитные сетки
- Входная металлическая (1 шт.): дверь с антивандальным покрытием с молотковым напылением снаружи, с декоративной МДФ-панелью изнутри, утеплённая, с глазком и цилиндровым замком. Производство Россия. (снаружи: Антик Медный/внутри: МДФ Беленый дуб; 2 замка,
- Закладные утепленные гильзы под канализацию
- Закладные утепленные гильзы под воду
- В стоимость не входит
Что еще входит в стоимость:
Отправьте свои контакты и мы расчитаем вам смету
Скорее всего вам подойдут следующие проекты домов:
Проект одноэтажного дома Дом id-111396
Семья с одним ребенком
Дом подходит для:
Дом подходит для:
Проект одноэтажного дома Дом id-125957
Семья с одним ребенком
Дом подходит для:
Дом подходит для:
Проект одноэтажного дома Дом id-112276
Семья с двумя детьми
Дом подходит для:
Дом подходит для:























