Проект одноэтажного дома FL 43
Дом подходит для:
Площадь
43 м 2
Размер дома:
8x9
Этажей:
1
Спален:
2
Санузел:
1
Гараж:
Нет
Баня:
Нет
Терраса:
Нет
Панорамные окна:
Нет
Мастер-спальня:
Нет
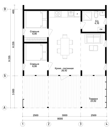
Планировка
Фасады
О проекте
Компактный дом площадью 43 м² с жилой зоной 32 м² идеален для небольшой семьи. Две спальни и один санузел создают уютное и функциональное пространство. Каркасная конструкция гарантирует тепло и надежность, а естественное освещение наполняет интерьер светом. Это место, где царит комфорт и спокойствие.Материалы и перечень работ
- В стоимость не входит
- Каркас из сухой строганой доски, сорт АБ, 45х145 45х195мм
- Утепление ватой Knauf insulation Проф 037 Aquastatik: 200 мм пол, 150 мм стены и кровля
- Ламинат на полу
- СУ керамогранит в комбинации с имитатором бруса
- В стоимость не входит
- Двухкамерные стеклопакеты с i напылением
- Деревянные двери и окна с двухкамерными стеклопакетами, поворотно-откидные
- Межкомнатные финские двери белые
- Вся электрика: светильники, розетки, выключатели, электрощиток с автоматами
- Разводка труб водопровода, канализации
- Приточно-вытяжная вентиляция в каждой комнате
- Унитаз, раковина, душ и бойлер 80 литров
- Смесители GROHE
- Имитация бруса на стенах и потолке
- Торцевые стены строганая доска 20x195
- В стоимость не входит
- Каркас из сухой строганой доски, сорт АБ, 45х145 45х195мм
- Утепление ватой Knauf insulation Проф 037 Aquastatik: 200 мм пол, 150 мм стены и кровля
- Ламинат на полу
- СУ керамогранит в комбинации с имитатором бруса
- В стоимость не входит
- Двухкамерные стеклопакеты с i напылением
- Деревянные двери и окна с двухкамерными стеклопакетами, поворотно-откидные
- Межкомнатные финские двери белые
- Вся электрика: светильники, розетки, выключатели, электрощиток с автоматами
- Разводка труб водопровода, канализации
- Приточно-вытяжная вентиляция в каждой комнате
- Унитаз, раковина, душ и бойлер 80 литров
- Смесители GROHE
- Имитация бруса на стенах и потолке
- Торцевые стены строганая доска 20x195
Что еще входит в стоимость:
Отправьте свои контакты и мы расчитаем вам смету
Скорее всего вам подойдут следующие проекты домов:
Проект одноэтажного дома BlagoBarn 41
Семья с одним ребенком
Дом подходит для:
Дом подходит для:

