Проект одноэтажного дома FL Next 125
Дом подходит для:
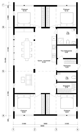
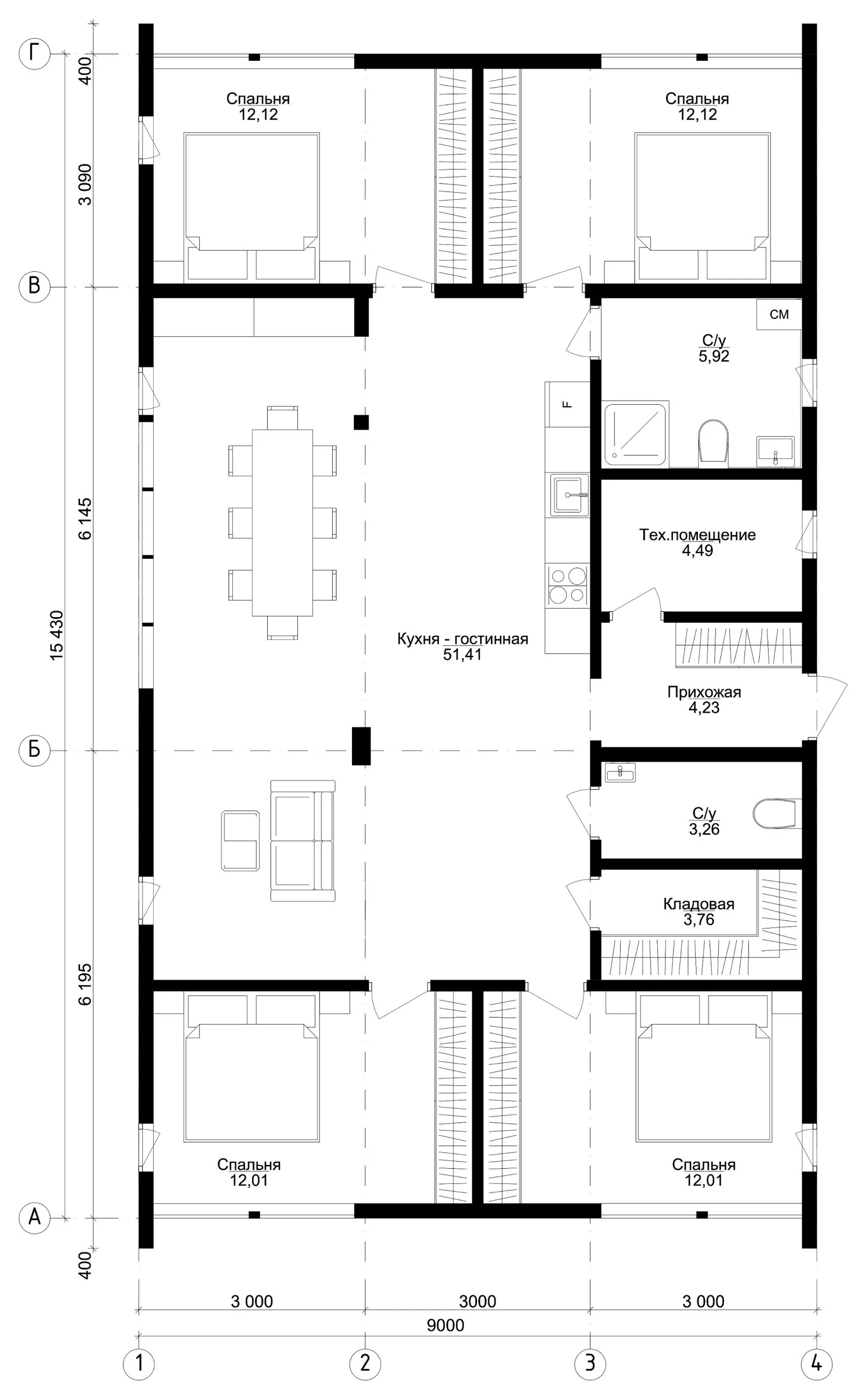
Площадь
125 м 2
Размер дома:
15,4х9
Этажей:
1
Спален:
4
Санузел:
2
Гараж:
Нет
Баня:
Нет
Терраса:
Нет
Панорамные окна:
Нет
Мастер-спальня:
Нет
Планировка
Фасады
О проекте
Просторный дом площадью 125 м² с жилой зоной 97 м² создан для большой семьи. Четыре спальни и два санузла обеспечивают комфорт и удобство. Каркасная технология гарантирует тепло и энергоэффективность, а естественное освещение наполняет дом светом. Это место, где царит гармония и спокойствие.Характеристики
- Общая площадь: 125 м2
- Жилая площадь: 97 м2
- Количество этажей: 1
- Гараж: нет
- Площадь кровли: 131 м2
- Отделка: С инженерными коммуникациями
Материалы и перечень работ
- В стоимость не входит
- Каркас из сухой строганой доски, сорт АБ, 45х145 45х195мм
- Утепление ватой Knauf insulation Проф 037 Aquastatik: 200 мм пол, 150 мм стены и кровля
- Ламинат на полу
- СУ керамогранит в комбинации с имитатором бруса
- В стоимость не входит
- Двухкамерные стеклопакеты с i напылением
- Деревянные двери и окна с двухкамерными стеклопакетами, поворотно-откидные
- Межкомнатные финские двери белые
- Вся электрика: светильники, розетки, выключатели, электрощиток с автоматами
- Разводка труб водопровода, канализации
- Приточно-вытяжная вентиляция в каждой комнате
- Унитаз, раковина, душ и бойлер 80 литров
- Смесители GROHE
- Имитация бруса на стенах и потолке
- Торцевые стены строганая доска 20x195
- В стоимость не входит
- Каркас из сухой строганой доски, сорт АБ, 45х145 45х195мм
- Утепление ватой Knauf insulation Проф 037 Aquastatik: 200 мм пол, 150 мм стены и кровля
- Ламинат на полу
- СУ керамогранит в комбинации с имитатором бруса
- В стоимость не входит
- Двухкамерные стеклопакеты с i напылением
- Деревянные двери и окна с двухкамерными стеклопакетами, поворотно-откидные
- Межкомнатные финские двери белые
- Вся электрика: светильники, розетки, выключатели, электрощиток с автоматами
- Разводка труб водопровода, канализации
- Приточно-вытяжная вентиляция в каждой комнате
- Унитаз, раковина, душ и бойлер 80 литров
- Смесители GROHE
- Имитация бруса на стенах и потолке
- Торцевые стены строганая доска 20x195
Что еще входит в стоимость:
Отправьте свои контакты и мы расчитаем вам смету
Скорее всего вам подойдут следующие проекты домов:
Дом подходит для:
Проект одноэтажного дома Сканди 140
Семья с двумя детьми
Дом подходит для:
Дом подходит для:
Проект одноэтажного дома CLT'DOM 122
Семья с двумя детьми
Дом подходит для:
Дом подходит для:














