Проект одноэтажного дома Flat-001-ba
Дом подходит для:
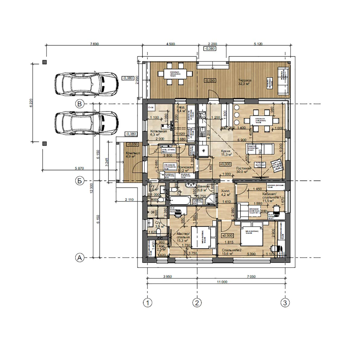
Площадь
125 м 2
Размер дома:
11х18
Этажей:
1
Спален:
3
Санузел:
3
Гараж:
Нет
Баня:
Нет
Терраса:
Нет
Панорамные окна:
Нет
Мастер-спальня:
Да
Планировка
Характеристики
- Общая площадь: 125 м2
- Жилая площадь: 96 м2
- Количество этажей: 1
- Гараж: нет
- Площадь кровли: 125 м2
- Отделка: Без отделки
- Фундамент: Дома с плитным фундаментом
Материалы и перечень работ
- Монолитная ж/б лента 300х600 (Н) мм:
- устройство песчаной подушки под ленту 250-300 (Н) мм на геотекстильном основании;
- гидроизоляция;
- монтаж опалубки деревянной;
- устройство арматурного каркаса из арм. Ø6-12 мм;
- Наружные стены Комплект керамоблоки
- упаковка пачек в пленку;
- комплект шпилек и усадочных элементов с монтажом (шпильки d12мм, шайбы, гайки, муфты, усадочные элементы, из оцинкованной стали);
- межвенцовый уплотнитель с укладкой;
- погрузо-разгрузочные работы;
- стропильные фермы из строганной доски (сосна, ель) камерной сушки;
- соединения каркаса ферм металло-зубчатыми пластинами;
- Комплект крепежа и расходных материалов (гвозди, саморезы, металлические пластины (уголки, опоры), скобы, укрывной материал).
- Мягкая битумная кровля: двухслойная (цвет по согласованию), с комплектующими;
- гидро-ветрозащитная мембрана.
- В стоимость не входит
- электрика (прокладка трубы ПНД);
- водоснабжение (прокладка трубы ПНД);
- канализация (прокладка трубы ПВХ).
- Трубы проводятся под пятном застройки и отводятся на 1 метра за границу фундамента.
- В стоимость не входит
- Монолитная ж/б лента 300х600 (Н) мм:
- устройство песчаной подушки под ленту 250-300 (Н) мм на геотекстильном основании;
- гидроизоляция;
- монтаж опалубки деревянной;
- устройство арматурного каркаса из арм. Ø6-12 мм;
- Наружные стены Комплект керамоблоки
- упаковка пачек в пленку;
- комплект шпилек и усадочных элементов с монтажом (шпильки d12мм, шайбы, гайки, муфты, усадочные элементы, из оцинкованной стали);
- межвенцовый уплотнитель с укладкой;
- погрузо-разгрузочные работы;
- стропильные фермы из строганной доски (сосна, ель) камерной сушки;
- соединения каркаса ферм металло-зубчатыми пластинами;
- Комплект крепежа и расходных материалов (гвозди, саморезы, металлические пластины (уголки, опоры), скобы, укрывной материал).
- Мягкая битумная кровля: двухслойная (цвет по согласованию), с комплектующими;
- гидро-ветрозащитная мембрана.
- В стоимость не входит
- электрика (прокладка трубы ПНД);
- водоснабжение (прокладка трубы ПНД);
- канализация (прокладка трубы ПВХ).
- Трубы проводятся под пятном застройки и отводятся на 1 метра за границу фундамента.
- В стоимость не входит
Что еще входит в стоимость:
Отправьте свои контакты и мы расчитаем вам смету
Скорее всего вам подойдут следующие проекты домов:
Проект одноэтажного дома П362
Семья с двумя детьми
Дом подходит для:
Дом подходит для:
Дом подходит для:
Дом подходит для:












