Проект одноэтажного дома Flat-002-zv
Дом подходит для:
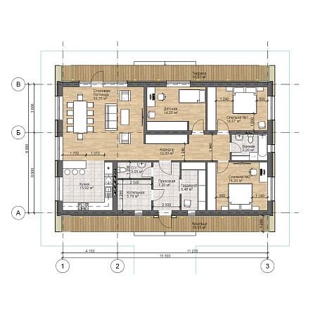
Площадь
132 м 2
Размер дома:
15.3x9.6
Этажей:
1
Спален:
3
Санузел:
2
Гараж:
Нет
Баня:
Нет
Терраса:
Нет
Панорамные окна:
Нет
Мастер-спальня:
Нет
Планировка
Характеристики
- Общая площадь: 132 м2
- Жилая площадь: 104 м2
- Количество этажей: 1
- Гараж: нет
- Площадь кровли: 132 м2
- Отделка: Без отделки
- Фундамент: Дома с плитным фундаментом
Материалы и перечень работ
- Монолитная ж/б лента 300х600 (Н) мм
- устройство песчаной подушки под ленту 250-300 (Н) мм на геотекстильном основании;
- гидроизоляция
- монтаж опалубки деревянной;
- устройство арматурного каркаса из арм. Ø6-12 мм;
- подкладочные доски из лиственницы под первый венец бруса;
- брус, сечением 185(в)х200(ш) мм;
- обработка бруса биозащитным и огнезащитным составом;
- обработка торцов бруса спецсоставом;
- упаковка пачек в пленку;
- стропильные фермы из строганной доски (сосна, ель) камерной сушки;
- соединения каркаса ферм металло-зубчатыми пластинами;
- Комплект крепежа и расходных материалов (гвозди, саморезы, металлические пластины (уголки, опоры), скобы, укрывной материал).
- Фальцевая кровля;
- обрешётка: строганная доска (сосна, ель) камерной сушки 25х100 мм (±5мм);
- В стоимость не входят
- электрика (прокладка трубы ПНД);
- водоснабжение (прокладка трубы ПНД);
- канализация (прокладка трубы ПВХ).
- Трубы проводятся под пятном застройки и отводятся на 1 метра за границу фундамента.
- В стоимость не входит
- Монолитная ж/б лента 300х600 (Н) мм
- устройство песчаной подушки под ленту 250-300 (Н) мм на геотекстильном основании;
- гидроизоляция
- монтаж опалубки деревянной;
- устройство арматурного каркаса из арм. Ø6-12 мм;
- подкладочные доски из лиственницы под первый венец бруса;
- брус, сечением 185(в)х200(ш) мм;
- обработка бруса биозащитным и огнезащитным составом;
- обработка торцов бруса спецсоставом;
- упаковка пачек в пленку;
- стропильные фермы из строганной доски (сосна, ель) камерной сушки;
- соединения каркаса ферм металло-зубчатыми пластинами;
- Комплект крепежа и расходных материалов (гвозди, саморезы, металлические пластины (уголки, опоры), скобы, укрывной материал).
- Фальцевая кровля;
- обрешётка: строганная доска (сосна, ель) камерной сушки 25х100 мм (±5мм);
- В стоимость не входят
- электрика (прокладка трубы ПНД);
- водоснабжение (прокладка трубы ПНД);
- канализация (прокладка трубы ПВХ).
- Трубы проводятся под пятном застройки и отводятся на 1 метра за границу фундамента.
- В стоимость не входит
Что еще входит в стоимость:
Отправьте свои контакты и мы расчитаем вам смету
Скорее всего вам подойдут следующие проекты домов:
Дом подходит для:
Проект одноэтажного дома Проект 7015 - каркасный дом по финской технологии
Для большой семьи
Дом подходит для:
Дом подходит для:
Дом подходит для:














