Проект одноэтажного дома ГБД-177
Дом подходит для:
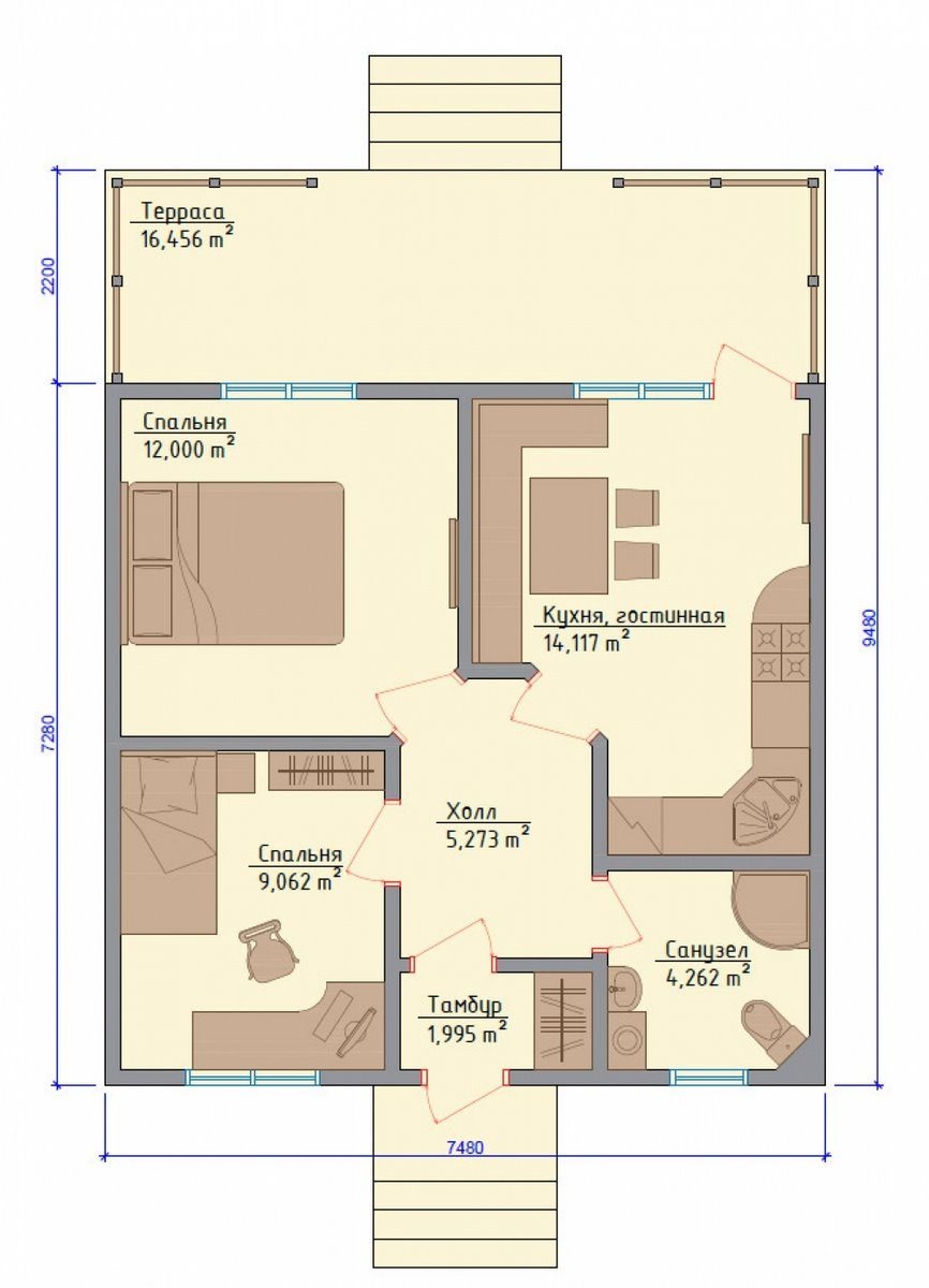
Площадь
61 м 2
Размер дома:
7х9
Этажей:
1
Спален:
2
Санузел:
1
Гараж:
Нет
Баня:
Нет
Терраса:
Да
Панорамные окна:
Нет
Мастер-спальня:
Нет
Планировка
Характеристики
- Общая площадь: 61 м2
- Жилая площадь: 40 м2
- Количество этажей: 1
- Гараж: нет
- Площадь кровли: 66 м2
- Форма: Квадратные дома
- Тип кровли: Дома с двускатной крышей
- Пристрой: Дома с верандой
- Отделка: Без отделки
- Отделка фасада: Дома с комбинированной отделкой
- Фундамент: Дома со свайным фундаментом
Материалы и перечень работ
- Свайно-винтовой: Винтовые сваи 2500х108х4мм грунт по металлу двухкомпонентный. Обвязка фундамента брус 100х200мм. Дополнительная защитная обработка бруса обвязки.
- Внешние стены: СИП-панель 174мм (OSB-3, 12мм
- Пол первого этажа: СИП-панель 174мм (OSB-3, 12мм).Шаг 1250мм.
- Внутренние несущие стены: Каркас 50х100мм.
- Внутренние стены: Каркас 50х100мм.
- Межэтажное перекрытие: Брус 200х100мм + (OSB-3, 22мм).
- Кровля: Металлочерепица с покрытие Полиэстер (толщина 0,45мм).
- В стоимость не входит
- В стоимость не входит
- В стоимость не входит
- Свайно-винтовой: Винтовые сваи 2500х108х4мм грунт по металлу двухкомпонентный. Обвязка фундамента брус 100х200мм. Дополнительная защитная обработка бруса обвязки.
- Внешние стены: СИП-панель 174мм (OSB-3, 12мм
- Пол первого этажа: СИП-панель 174мм (OSB-3, 12мм).Шаг 1250мм.
- Внутренние несущие стены: Каркас 50х100мм.
- Внутренние стены: Каркас 50х100мм.
- Межэтажное перекрытие: Брус 200х100мм + (OSB-3, 22мм).
- Кровля: Металлочерепица с покрытие Полиэстер (толщина 0,45мм).
- В стоимость не входит
- В стоимость не входит
- В стоимость не входит
Что еще входит в стоимость:
Отправьте свои контакты и мы расчитаем вам смету
Скорее всего вам подойдут следующие проекты домов:
Проект одноэтажного дома ГБД-166
Семья с одним ребенком
Дом подходит для:
Дом подходит для:
Проект одноэтажного дома ГБД-167
Семья с одним ребенком
Дом подходит для:
Дом подходит для:





