Проект двухэтажного дома Гестола
Дом подходит для:
Площадь
164 м 2
Размер дома:
9,3х8
Этажей:
2
Спален:
4
Санузел:
2
Гараж:
Нет
Баня:
Нет
Терраса:
Нет
Панорамные окна:
Нет
Мастер-спальня:
Нет
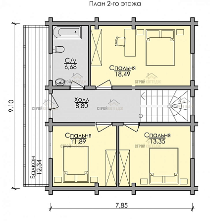
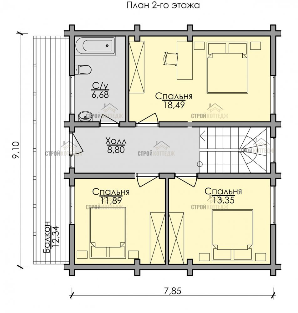
Планировка
Характеристики
- Общая площадь: 164 м2
- Жилая площадь: 128 м2
- Количество этажей: 2
- Гараж: нет
- Площадь кровли: 168 м2
- Отделка: Без отделки
- Фундамент: Дома с плитным фундаментом
Материалы и перечень работ
- Монолитная ж/б плита перекрытие 160 мм
- Устройство песчаной подушки 300-700 мм
- Вязка арматурного каркаса 12/8/6 мм
- Монолитный ж/б ростверк 400 х 400 мм
- Утепление под плитой ЭППС толщиной 50 мм, включая ребра жесткости и внешний периметр
- Внутренние несущие стены из блоков Porotherm для перегородок М100 – 250 мм и 80 мм
- Укладка первого ряда на гидроизоляцию
- Кладка блоков производится на тёплый раствор Porotherm TM
- Перегородки согласно проекту
- Монолитный ж/б пояс 210х200 мм с утеплением и кладкой доборного блока
- Кровля металлочерепица Grand Line, цвет на выбор
- Стропильная конструкция из доски 45х195 мм
- Система обрешетки / контробрешетки 25х100, 50х50 мм
- Установка стропильной конструкции на плавающих опорах, скользящая система
- Утепление кровли 200 мм «внахлест» Rockwool (Финляндия)
- 2-ух камерный стеклопакет REHAU 70 мм (Германия)
- Энергосберегающий стеклопакет ширина 32 мм
- Двухконтурное уплотнение черного цвета
- Усиленное армирование 1,5 мм
- Полноценная обсадная коробка, гидроизоляция
- Коллекторная разводка труб REHAU (Германия)
- Трубы REHAU
- Автоматический щиток ABB (Англия)
- Безопасный провод NYM
- Закладная под точку канализации
- Внешние несущие стены из блоков Porotherm плотность М100 – 380 мм
- Все расходные и сопутствующие материалы необходимые для сборки стенового комплекта
- Монолитная ж/б плита перекрытие 160 мм
- Устройство песчаной подушки 300-700 мм
- Вязка арматурного каркаса 12/8/6 мм
- Монолитный ж/б ростверк 400 х 400 мм
- Утепление под плитой ЭППС толщиной 50 мм, включая ребра жесткости и внешний периметр
- Внутренние несущие стены из блоков Porotherm для перегородок М100 – 250 мм и 80 мм
- Укладка первого ряда на гидроизоляцию
- Кладка блоков производится на тёплый раствор Porotherm TM
- Перегородки согласно проекту
- Монолитный ж/б пояс 210х200 мм с утеплением и кладкой доборного блока
- Кровля металлочерепица Grand Line, цвет на выбор
- Стропильная конструкция из доски 45х195 мм
- Система обрешетки / контробрешетки 25х100, 50х50 мм
- Установка стропильной конструкции на плавающих опорах, скользящая система
- Утепление кровли 200 мм «внахлест» Rockwool (Финляндия)
- 2-ух камерный стеклопакет REHAU 70 мм (Германия)
- Энергосберегающий стеклопакет ширина 32 мм
- Двухконтурное уплотнение черного цвета
- Усиленное армирование 1,5 мм
- Полноценная обсадная коробка, гидроизоляция
- Коллекторная разводка труб REHAU (Германия)
- Трубы REHAU
- Автоматический щиток ABB (Англия)
- Безопасный провод NYM
- Закладная под точку канализации
- Внешние несущие стены из блоков Porotherm плотность М100 – 380 мм
- Все расходные и сопутствующие материалы необходимые для сборки стенового комплекта
Что еще входит в стоимость:
Отправьте свои контакты и мы расчитаем вам смету
Скорее всего вам подойдут следующие проекты домов:
Дом подходит для:
Дом подходит для:
Дом подходит для:














