Проект одноэтажного дома Гоголь Барн 72
Дом подходит для:
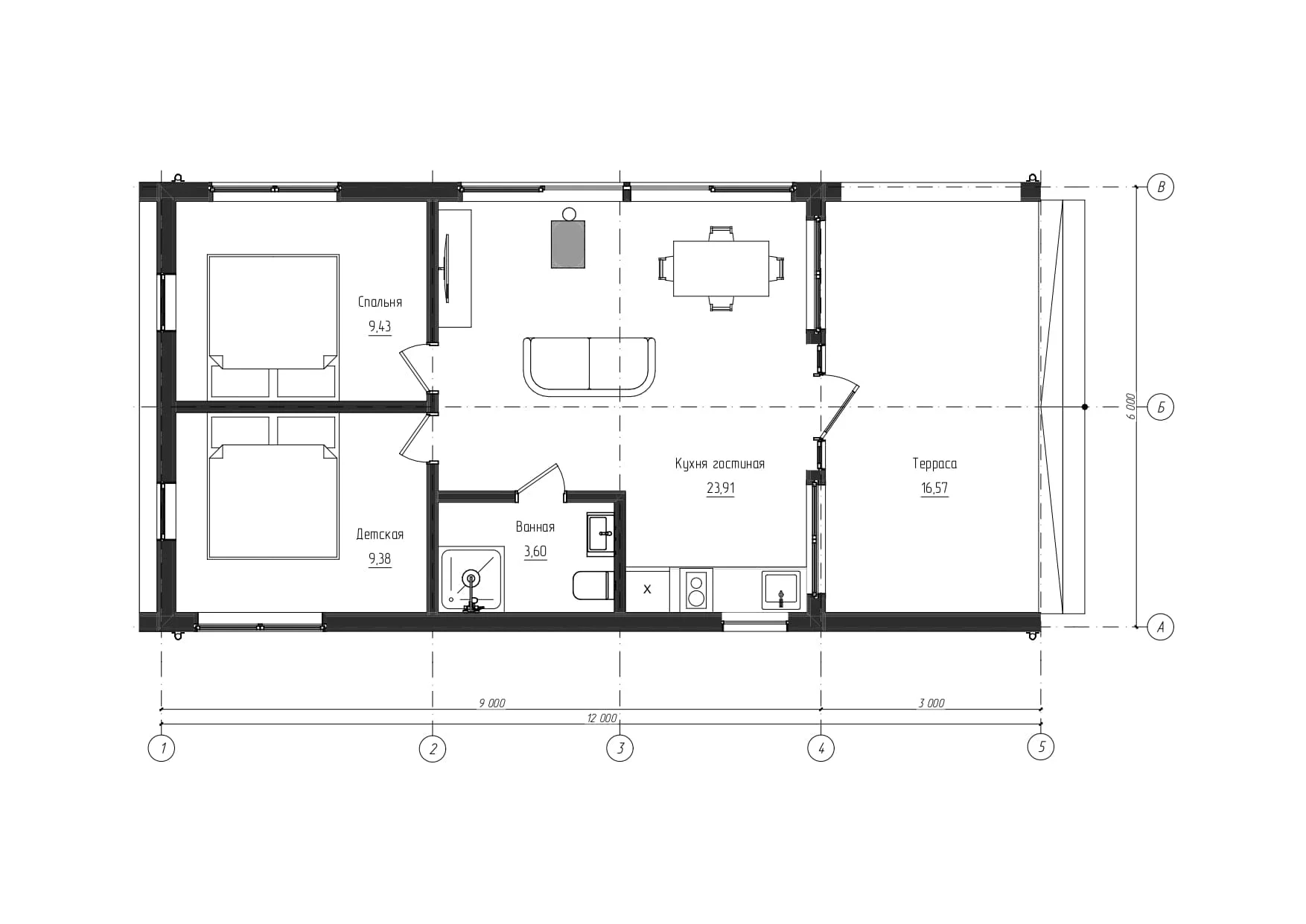
Площадь
72 м 2
Размер дома:
6х12
Этажей:
1
Спален:
2
Санузел:
1
Гараж:
Нет
Баня:
Нет
Терраса:
Нет
Панорамные окна:
Нет
Мастер-спальня:
Нет
Планировка
Характеристики
- Общая площадь: 72 м2
- Жилая площадь: 42 м2
- Количество этажей: 1
- Гараж: нет
- Площадь кровли: 77 м2
- Отделка: Без отделки
- Фундамент: Дома со свайно-винтовым фундаментом
Материалы и перечень работ
- Фундамент свайно-винтовой (с учетом ровности участка и шага сваи в 2 м и высотой сваи не более 2,5 м)
- Пол и крыша: 200 мм
- Стены: 200 мм
- Кровля: профлист
- 2-камерные стеклопакеты REHAU c энергосберегающим напылением и внешней ламинацией в цвет фасада
- ПАКЕТ САНТЕХНИКА (бойлер 80-100л, сантехника в санузле, наружная разводка сантехнических труб)
- ПАКЕТ ВЕНТИЛЯЦИЯ (приток + вентилятор на кухне и с/у)
- ПАКЕТ ЭЛЕКТРИКА" (скрытая\открытая проводка, ретро - на выбор), заземление через стержень
- Отопление (электрический конвектор 1,5 кВт в каждой комнате, 0,5 кВт в санузле)
- Имитация бруса сорт А-Б/ планкен Хвоя
- Покраска комплексная снаружи и внутри
- Комплексная отделка цоколя брусом 40х20 мм H0,5м
- Фундамент свайно-винтовой (с учетом ровности участка и шага сваи в 2 м и высотой сваи не более 2,5 м)
- Пол и крыша: 200 мм
- Стены: 200 мм
- Кровля: профлист
- 2-камерные стеклопакеты REHAU c энергосберегающим напылением и внешней ламинацией в цвет фасада
- ПАКЕТ САНТЕХНИКА (бойлер 80-100л, сантехника в санузле, наружная разводка сантехнических труб)
- ПАКЕТ ВЕНТИЛЯЦИЯ (приток + вентилятор на кухне и с/у)
- ПАКЕТ ЭЛЕКТРИКА" (скрытая\открытая проводка, ретро - на выбор), заземление через стержень
- Отопление (электрический конвектор 1,5 кВт в каждой комнате, 0,5 кВт в санузле)
- Имитация бруса сорт А-Б/ планкен Хвоя
- Покраска комплексная снаружи и внутри
- Комплексная отделка цоколя брусом 40х20 мм H0,5м
Что еще входит в стоимость:
Отправьте свои контакты и мы расчитаем вам смету
Скорее всего вам подойдут следующие проекты домов:
Проект одноэтажного дома Проект 3053 - каркасный дом-барнхаус с двумя спальнями и лофтом
Семья с одним ребенком
Дом подходит для:
Дом подходит для:
Проект одноэтажного дома Проект дома «Гриндельвальд (К-1-77)»
Семья с двумя детьми
Дом подходит для:
Дом подходит для:
Проект одноэтажного дома Альфа
Семья с двумя детьми
Дом подходит для:
Дом подходит для:











