Проект одноэтажного дома Градский
Дом подходит для:
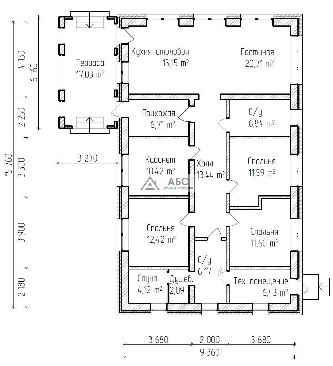
Площадь
146 м 2
Размер дома:
9х16
Этажей:
1
Спален:
4
Санузел:
1
Гараж:
Нет
Баня:
Нет
Терраса:
Нет
Панорамные окна:
Нет
Мастер-спальня:
Нет
Планировка
Характеристики
- Общая площадь: 146 м2
- Жилая площадь: 119 м2
- Количество этажей: 1
- Гараж: нет
- Площадь кровли: 152 м2
- Отделка: Без отделки
- Фундамент: Дома со свайным фундаментом
Материалы и перечень работ
- Фундамент и цоколь под газобетонные блоки: рассчитывается на основании инженерно-геологических изысканиях; свайно-ростверковый, сваи ЖБ 200*200*4000 заводского изготовления.
- Монтаж фундамента/ цоколя не менее 500мм с двойным армированием. Бетон марки М300- сертифицированный, выравнивание по СНиП, виброусадка.
- Гидроизоляция : прокладная /отсечная из гидроизола Техно николь
- Наружные стены выполнены из газобетонных блоков. Толщина 375/D500 , тонкошовная кладка на специальный кладочный клей.
- Внутренние несущие стены выполнены из газобетонных блоков толщина 250/D500. Перегородки по перекрытиям газоблок 100мм D500.
- Устройство перемычек по проекту металлических, Ж/Б из бетона B25, газобетонных U-блок; Утепление перемычек эксктрудированным пенополистиролом. Заделка некратных мест, под перекрытия (кирпич м150 р-р м100) по проекту;
- Перекрытие сборное из пустотных плит заводского изготовления 160-220мм по проекту; Устройство монолитных участков и балок ,заделка некратных мест плит перекрытий бетоном B25;
- Армирование некратных мест между плитами; Утепление пенополистиролом 150мм, по верху плиты перекрытия на не эксплуатируемом чердаке с применением пароизоляции. Устройство закладных отверстий под вентиляцию.
- Деревянная Стропильная система, из доски 50х200, и 50*150 в зависимости от конструктивного расчета и особенностей проекта.
- Гидроизоляция из мембранной гидропленки Tayvek. Контробрешетка из бруска 50*50 для создания вентиляционного зазора.
- Обрешетка из доски 25мм разреженный настил под шаг кровли. Металлочерепица, в комплекте с капельниками, ветровыми планками, карнизными планками, коньковыми элементами.
- Утепление перекрёстное минерально-ватным утеплителем 200мм утепление на эксплуатируемой мансарде.
- Пароизляция с проклейкой швов и стыков.
- Дверь входная металлическая/ балконная ПВХ.
- Оконные и балконные дверные изделия из ПВХ профиль 70-72мм, фурнитура- фурнитура Roto с классом защиты WK1,WK2.,Трехкамерные стеклопакеты с мульти функциями , москитная сетка.
- Ввод закладных трубопроводов пнд d63 под систему водоснабжения.
- Ввод закладных гильз из трубопроводов d63 для подземного ввода бронированного кабеля ВБшВ.
- Ввод/вывод трубопроводов от точки подключения в доме за пределы дома системы канализации d110 ПВХ Оранжевая утолщенная.
- В стоимость не входит
- Фундамент и цоколь под газобетонные блоки: рассчитывается на основании инженерно-геологических изысканиях; свайно-ростверковый, сваи ЖБ 200*200*4000 заводского изготовления.
- Монтаж фундамента/ цоколя не менее 500мм с двойным армированием. Бетон марки М300- сертифицированный, выравнивание по СНиП, виброусадка.
- Гидроизоляция : прокладная /отсечная из гидроизола Техно николь
- Наружные стены выполнены из газобетонных блоков. Толщина 375/D500 , тонкошовная кладка на специальный кладочный клей.
- Внутренние несущие стены выполнены из газобетонных блоков толщина 250/D500. Перегородки по перекрытиям газоблок 100мм D500.
- Устройство перемычек по проекту металлических, Ж/Б из бетона B25, газобетонных U-блок; Утепление перемычек эксктрудированным пенополистиролом. Заделка некратных мест, под перекрытия (кирпич м150 р-р м100) по проекту;
- Перекрытие сборное из пустотных плит заводского изготовления 160-220мм по проекту; Устройство монолитных участков и балок ,заделка некратных мест плит перекрытий бетоном B25;
- Армирование некратных мест между плитами; Утепление пенополистиролом 150мм, по верху плиты перекрытия на не эксплуатируемом чердаке с применением пароизоляции. Устройство закладных отверстий под вентиляцию.
- Деревянная Стропильная система, из доски 50х200, и 50*150 в зависимости от конструктивного расчета и особенностей проекта.
- Гидроизоляция из мембранной гидропленки Tayvek. Контробрешетка из бруска 50*50 для создания вентиляционного зазора.
- Обрешетка из доски 25мм разреженный настил под шаг кровли. Металлочерепица, в комплекте с капельниками, ветровыми планками, карнизными планками, коньковыми элементами.
- Утепление перекрёстное минерально-ватным утеплителем 200мм утепление на эксплуатируемой мансарде.
- Пароизляция с проклейкой швов и стыков.
- Дверь входная металлическая/ балконная ПВХ.
- Оконные и балконные дверные изделия из ПВХ профиль 70-72мм, фурнитура- фурнитура Roto с классом защиты WK1,WK2.,Трехкамерные стеклопакеты с мульти функциями , москитная сетка.
- Ввод закладных трубопроводов пнд d63 под систему водоснабжения.
- Ввод закладных гильз из трубопроводов d63 для подземного ввода бронированного кабеля ВБшВ.
- Ввод/вывод трубопроводов от точки подключения в доме за пределы дома системы канализации d110 ПВХ Оранжевая утолщенная.
- В стоимость не входит
Что еще входит в стоимость:
Отправьте свои контакты и мы расчитаем вам смету
Скорее всего вам подойдут следующие проекты домов:
Проект одноэтажного дома Flat-02
Семья с двумя детьми
Дом подходит для:
Дом подходит для:
Проект одноэтажного дома Таир одноэтажный 15х15
Семья с двумя детьми
Дом подходит для:
Дом подходит для:
Проект одноэтажного дома Авангард
Семья с одним ребенком
Дом подходит для:
Дом подходит для:











