Проект двухэтажного дома И-069
Дом подходит для:
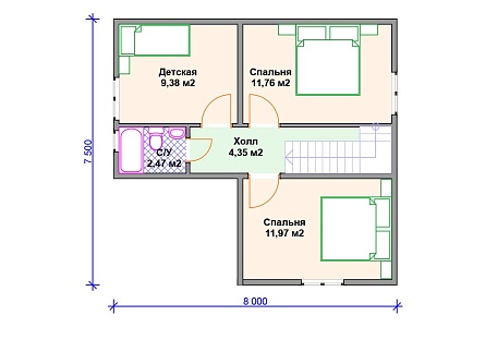
Площадь
96 м 2
Размер дома:
8x8
Этажей:
2
Спален:
4
Санузел:
2
Гараж:
Нет
Баня:
Нет
Терраса:
Да
Панорамные окна:
Нет
Мастер-спальня:
Нет
Планировка
Фасады
О проекте
Этот уютный каркасный дом площадью 96 м² создан для большой семьи, предлагая просторные 68 м² жилого пространства. Два этажа с четырьмя спальнями обеспечивают комфорт и приватность для всех домочадцев. Практичная планировка и натуральные материалы стен создают гармоничную атмосферу. Здесь каждый найдет свой уголок для отдыха и уединения.Характеристики
- Общая площадь: 96 м2
- Жилая площадь: 68 м2
- Количество этажей: 2
- Гараж: нет
- Площадь кровли: 105 м2
- Форма: Квадратные дома
- Тип кровли: Дома с многощипцовой крышей
- Пристрой: Дома с террасой
- Отделка: Без отделки
- Размер: 8x8
Материалы и перечень работ
- В стоимость не входит
- Обвязка: Обвязочный брус 150х150 мм.
- Лаги пола: Выполняются из доски 50х150 мм.
- Внешние стены и внутренние перегородки: Выполняются по каркасной ( Финской и Скандинавской ) технологии. Толщина стен 100 мм. ( Выполняется из бруса 50х100 мм. )
- Внутренняя отделка дома: Вагонка ( 9х90 мм. ). ( Возможна замена на: вагонку «штиль», имитацию бруса, гипсокартон, и др. ).
- Межэтажное перекрытие: Выполняется из бруса 50х150 мм. ( Возможна замена на: 50х200 мм., или двутавровые балки ).
- Стропильная система: Выполняются из бруса 50х150 мм. ( Возможна замена на: 50х200 мм. ).
- Кровельное покрытие и карнизные свесы: Ондулин Цвет на выбор: зеленый, вишня, коричневый. ( Возможна замена на: профлист, металлочерепицу, клик фальц, мягкую черепицу и др. ). Длина карнизного свеса 400 +/- 50 мм. ( Возможно увеличение длины карнизного свеса ) Карнизный свес подшивается вагонкой ( 9х90 мм.). ( Возможна замена на: имитацию бруса, софит и др. )
- Окна: ПВХ однокамерный стеклопакет, поворотно-откидные. ( Возможна замена на двухкамерный ПВХ стеклопакет, поворотно-откидные и др. )
- Дверь входная: Металлическая, утепленная, с фурнитурой.
- В стоимость не входит
- Отделка фасада дома: Вагонка ( 9х90 мм. ). ( Возможна замена на: имитацию бруса, сайдинг, фасадные панели, и др. ).
- В стоимость не входит
- Обвязка: Обвязочный брус 150х150 мм.
- Лаги пола: Выполняются из доски 50х150 мм.
- Внешние стены и внутренние перегородки: Выполняются по каркасной ( Финской и Скандинавской ) технологии. Толщина стен 100 мм. ( Выполняется из бруса 50х100 мм. )
- Внутренняя отделка дома: Вагонка ( 9х90 мм. ). ( Возможна замена на: вагонку «штиль», имитацию бруса, гипсокартон, и др. ).
- Межэтажное перекрытие: Выполняется из бруса 50х150 мм. ( Возможна замена на: 50х200 мм., или двутавровые балки ).
- Стропильная система: Выполняются из бруса 50х150 мм. ( Возможна замена на: 50х200 мм. ).
- Кровельное покрытие и карнизные свесы: Ондулин Цвет на выбор: зеленый, вишня, коричневый. ( Возможна замена на: профлист, металлочерепицу, клик фальц, мягкую черепицу и др. ). Длина карнизного свеса 400 +/- 50 мм. ( Возможно увеличение длины карнизного свеса ) Карнизный свес подшивается вагонкой ( 9х90 мм.). ( Возможна замена на: имитацию бруса, софит и др. )
- Окна: ПВХ однокамерный стеклопакет, поворотно-откидные. ( Возможна замена на двухкамерный ПВХ стеклопакет, поворотно-откидные и др. )
- Дверь входная: Металлическая, утепленная, с фурнитурой.
- В стоимость не входит
- Отделка фасада дома: Вагонка ( 9х90 мм. ). ( Возможна замена на: имитацию бруса, сайдинг, фасадные панели, и др. ).
Что еще входит в стоимость:
Отправьте свои контакты и мы расчитаем вам смету
Скорее всего вам подойдут следующие проекты домов:
Дом подходит для:
Дом подходит для:
Дом подходит для:










