Проект одноэтажного дома ИБ-14
Дом подходит для:
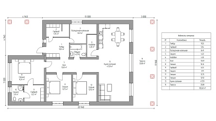
Площадь
147 м 2
Размер дома:
20,9х11,9
Этажей:
1
Спален:
3
Санузел:
2
Гараж:
Нет
Баня:
Нет
Терраса:
Нет
Панорамные окна:
Нет
Мастер-спальня:
Нет
Планировка
Фасады
О проекте
Просторный дом площадью 147 м² с жилой зоной 116 м² создан для семьи с двумя детьми. Три спальни и два санузла обеспечивают комфорт и удобство. Газобетонные стены гарантируют тепло и надежность, а естественное освещение наполняет дом светом. Это место, где царит гармония и спокойствие.Характеристики
- Общая площадь: 147 м2
- Жилая площадь: 116 м2
- Количество этажей: 1
- Гараж: нет
- Площадь кровли: 152 м2
- Отделка: Без отделки
- Фундамент: Дома с плитным фундаментом
Материалы и перечень работ
- Плита фундаментная (монолит) арматура 12мм
- Основание плиточного фундамента «Подушка», Песок
- Гидроизоляция «Технониколь» рулонная
- Опалубка дерево
- Устройство гидроизоляции по верху «Технониколь»
- Устройство армирующего пояса Кладочная сетка шириной 300мм ячейка 10*10
- Внешние стены газобетонные блоки YTONG ISTKULIT
- Внутренние несущие конструкции газобетонные блоки YTONG ISTKULIT
- Внутренние перегородки газобетонные блоки YTONG ISTKULIT
- Стропила строганная доска 50*200*6
- Контробрешетка брус 40 х 40
- Обрешетка доска 20 х 150 / 25 х 100
- Затяжка стропил шпилька оцинкованная М12 (сталь)
- Металлочерепица или Кликфальц 0,5 мм. Полный комплект со всеми доборными элементами.
- Окна ПВХ двухкамерные, REHAU 70мм Цвет внешний: белый Цвет внутренний: белый Оконная ручка внутри: белая пластик Тип петель: 2 шт. Кол-во: согласно утвержденному проекту
- Подоконники пластик. Цвет: белый.
- Входная металлическая левая/правая, утепленная в два слоя с Терморазрывом (производитель Termo Door)
- В стоимость не входит
- Облицовочный кирпич согласно утвержденному проекту, RAL по выбору заказчика
- Имитация бруса карельский профиль ГОСТ А.Б. 21х140, с заводской покраской (краска SYMPHONY Forester)
- Фасадная штукатурка RAL по выбору заказчика
- Плита фундаментная (монолит) арматура 12мм
- Основание плиточного фундамента «Подушка», Песок
- Гидроизоляция «Технониколь» рулонная
- Опалубка дерево
- Устройство гидроизоляции по верху «Технониколь»
- Устройство армирующего пояса Кладочная сетка шириной 300мм ячейка 10*10
- Внешние стены газобетонные блоки YTONG ISTKULIT
- Внутренние несущие конструкции газобетонные блоки YTONG ISTKULIT
- Внутренние перегородки газобетонные блоки YTONG ISTKULIT
- Стропила строганная доска 50*200*6
- Контробрешетка брус 40 х 40
- Обрешетка доска 20 х 150 / 25 х 100
- Затяжка стропил шпилька оцинкованная М12 (сталь)
- Металлочерепица или Кликфальц 0,5 мм. Полный комплект со всеми доборными элементами.
- Окна ПВХ двухкамерные, REHAU 70мм Цвет внешний: белый Цвет внутренний: белый Оконная ручка внутри: белая пластик Тип петель: 2 шт. Кол-во: согласно утвержденному проекту
- Подоконники пластик. Цвет: белый.
- Входная металлическая левая/правая, утепленная в два слоя с Терморазрывом (производитель Termo Door)
- В стоимость не входит
- Облицовочный кирпич согласно утвержденному проекту, RAL по выбору заказчика
- Имитация бруса карельский профиль ГОСТ А.Б. 21х140, с заводской покраской (краска SYMPHONY Forester)
- Фасадная штукатурка RAL по выбору заказчика
Что еще входит в стоимость:
Отправьте свои контакты и мы расчитаем вам смету
Скорее всего вам подойдут следующие проекты домов:
Проект одноэтажного дома Дом id-114358
Семья с двумя детьми
Дом подходит для:
Дом подходит для:
Проект одноэтажного дома Дом id-92310
Семья с двумя детьми
Дом подходит для:
Дом подходит для:
Проект одноэтажного дома Дом id-57313
Семья с двумя детьми
Дом подходит для:
Дом подходит для:
























