Проект одноэтажного дома Игамба
Дом подходит для:
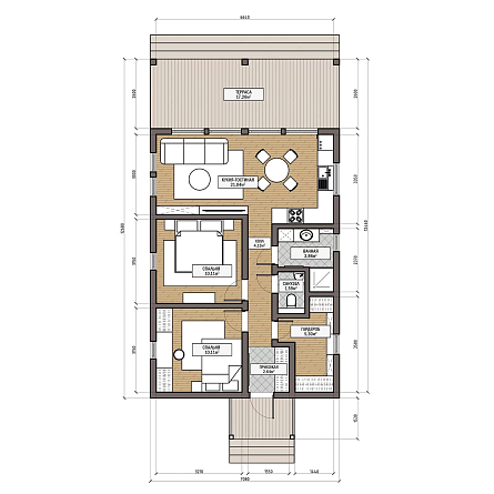
Площадь
70 м 2
Размер дома:
7х12.6
Этажей:
1
Спален:
2
Санузел:
1
Гараж:
Нет
Баня:
Нет
Терраса:
Нет
Панорамные окна:
Нет
Мастер-спальня:
Нет
Планировка
Фасады
О проекте
Компактный дом из клееного бруса площадью 70 м² идеален для семьи с одним ребенком. Жилая зона 54 м² обустроена с заботой о комфорте, а металлочерепица придает кровле стильный вид. Две спальни и санузел создают уютную атмосферу для повседневной жизни. Простота и надежность здесь сочетаются с домашним теплом.Характеристики
- Общая площадь: 70 м2
- Жилая площадь: 54 м2
- Количество этажей: 1
- Гараж: нет
- Площадь кровли: 74 м2
- Отделка: Без отделки
Материалы и перечень работ
- Несущие клееные балки
- Утеплитель – базальтовая минеральная плита Knauf
- Пароизоляция Изоспан
- Ветрозащита Изоспан
- Фанера 18 мм (черновой пол)
- Внутренние стены: Клееный профилированный брус
- Металлочерепица
- Стропильная система
- Утеплитель
- Гидроизоляция Изоспан
- Пароизоляция фольгированная Альфа-барьер
- Входная дверь с терморазрывом
- Окна 5ти камерный профиль, стеклопакет СПД 40
- Наружная обналичка и отливы
- В стоимость не входит
- Наружные стены: Клееный профилированный брус
- Несущие клееные балки
- Утеплитель – базальтовая минеральная плита Knauf
- Пароизоляция Изоспан
- Ветрозащита Изоспан
- Фанера 18 мм (черновой пол)
- Внутренние стены: Клееный профилированный брус
- Металлочерепица
- Стропильная система
- Утеплитель
- Гидроизоляция Изоспан
- Пароизоляция фольгированная Альфа-барьер
- Входная дверь с терморазрывом
- Окна 5ти камерный профиль, стеклопакет СПД 40
- Наружная обналичка и отливы
- В стоимость не входит
- Наружные стены: Клееный профилированный брус
Что еще входит в стоимость:
Отправьте свои контакты и мы расчитаем вам смету
Скорее всего вам подойдут следующие проекты домов:
Дом подходит для:
Проект одноэтажного дома Добрыня 3
Семья с одним ребенком
Дом подходит для:
Дом подходит для:
Проект одноэтажного дома Альпика 75
Семья с одним ребенком
Дом подходит для:
Дом подходит для:












