Ваш город:

Проект одноэтажного дома ИН - 130

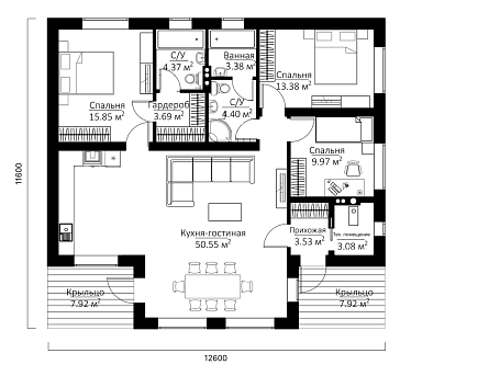
Площадь: 130 м2
Размер: 12,6х11,6
Дом подходит для:
Для большой семьи
Этажей:
1
Стены:
Кровля:
Металлочерепица
Цена:
Оставить заявку
Площадь
130 м 2
Размер дома:
12,6х11,6
Этажей:
1
Спален:
4
Санузел:
2
Гараж:
Нет
Баня:
Нет
Терраса:
Нет
Панорамные окна:
Нет
Мастер-спальня:
Нет
Фасады
О проекте
Просторный дом площадью 130 м² с жилой зоной 104 м² идеально подходит для большой семьи. Газобетонные стены обеспечивают тепло и тишину, а светлые интерьеры наполнены уютом. Продуманная планировка делает пространство функциональным и удобным. Здесь царит гармония между современным дизайном и домашним теплом.

Характеристики
  • Общая площадь: 130 м2
  • Жилая площадь: 104 м2
  • Количество этажей: 1
  • Гараж: нет
  • Площадь кровли: 133 м2
  • Отделка: Без отделки
  • Фундамент: Дома со свайным фундаментом
Материалы и перечень работ
  • Сваи 4000 мм; ростверк 400х500
  • Монолитный конструктв (колонны, перекрытия, кровельный пояс) с заполненным газобетонным блоком D500
  • Утепленная кровля 200мм; покрытие: металлочерепица
  • Вариативные
  • Электроснабжение, канализация, водопровод, интернет заведены в дом, газ с вводом в дом и подключением
  • Облицовочный кирпич 0,7/ Декоративная штукатурка
  • Сваи 4000 мм; ростверк 400х500
  • Монолитный конструктв (колонны, перекрытия, кровельный пояс) с заполненным газобетонным блоком D500
  • Утепленная кровля 200мм; покрытие: металлочерепица
  • Вариативные
  • Электроснабжение, канализация, водопровод, интернет заведены в дом, газ с вводом в дом и подключением
  • Облицовочный кирпич 0,7/ Декоративная штукатурка
Что еще входит в стоимость:
Фото и видеоотчет
Отправьте свои контакты и мы расчитаем вам смету
Прикрепить документ
Скорее всего вам подойдут следующие проекты домов:
Добавить к сравнению
Добавить в избранное
Изображение
Изображение
Изображение
Проект одноэтажного дома Дом с умом 120
Площадь: 120 м2
Размер: 14.1х9
Дом подходит для:
Семья с двумя детьми
Дом подходит для:
Семья с двумя детьми