Проект одноэтажного дома Iowa
Дом подходит для:
Площадь
93 м 2
Размер дома:
8.1х12.9
Этажей:
1
Спален:
2
Санузел:
1
Гараж:
Нет
Баня:
Нет
Терраса:
Да
Панорамные окна:
Нет
Мастер-спальня:
Нет
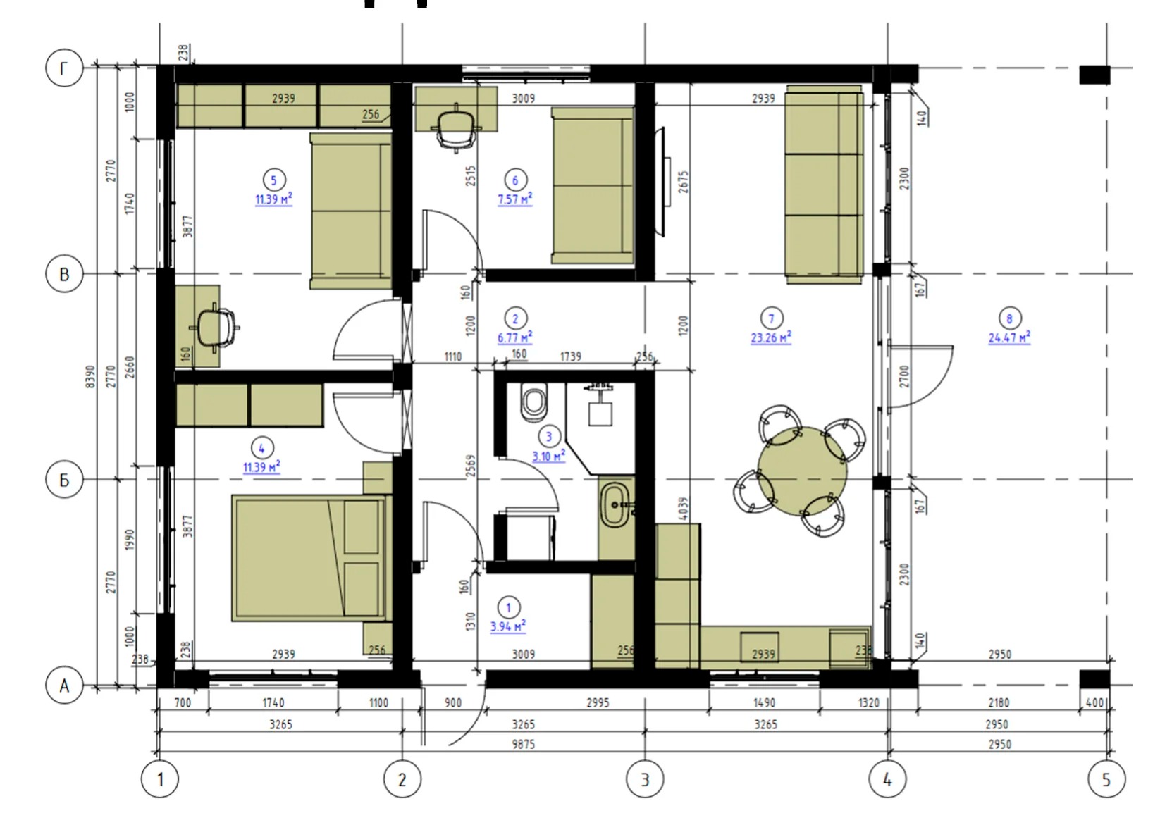
Планировка
Фасады
О проекте
Практичный дом площадью 93 м² создан для тех, кто ценит модульные решения и комфорт. 70 м² жилого пространства наполнены светом и воздухом, создавая ощущение свободы. Каркасная конструкция обеспечивает энергоэффективность, а лаконичный дизайн делает интерьер понятным и удобным. Это жилье, где каждая деталь работает на уют и практичность.Характеристики
- Общая площадь: 93 м2
- Жилая площадь: 70 м2
- Количество этажей: 1
- Гараж: нет
- Площадь кровли: 96 м2
- Стиль, разновидность: Модульные дома
- Форма: Квадратные дома
- Тип кровли: Дома с двускатной крышей
- Пристрой: Дома с верандой
- Отделка: Под ключ
- Отделка фасада: Дома с отделкой имитацией бруса
- Фундамент: Дома со свайным фундаментом
Материалы и перечень работ
- Железобетонные сваи 150х150х3000
- Обвязка
- Каркас: Доска камерной сушки хвойных пород 190х45
- Огнебиозащита: Neomid
- Каркас: Доска камерной сушки хвойных пород 140х45
- Утепление: 150 мм Технониколь
- Черновой пол: Влагостойкий Quick deck (Квик Дек)
- Клик-фальц или Профнастил (профлист)
- Водосточная система (пластик)
- Окна ПВХ KBE или аналог профиль 70мм; двухсторонняя ламинация
- Дверь входная с терморазрывом от производителя РФ . Двери межкомнатные (предоставляем на выбор 3 варианта).
- Электрический теплый пол с привязкой к мебели по всей площади дома
- Монтаж электрики в противопожарной гофре.
- Розетки, выключатели Legrand/Schneider.
- Разводка труб водоснабжения скрытым типом, сшитый полиэтилен REHAU - до 8 точек.
- Разводка труб канализации скрытым типом. До 4 точек
- Использование современных масел для древесины. Окрашенная в цеховых условиях имитация бруса 20х145х6000 или планкен, возможна замена на Кликфальц
- Декоративная подсветка.
- Железобетонные сваи 150х150х3000
- Обвязка
- Каркас: Доска камерной сушки хвойных пород 190х45
- Огнебиозащита: Neomid
- Каркас: Доска камерной сушки хвойных пород 140х45
- Утепление: 150 мм Технониколь
- Черновой пол: Влагостойкий Quick deck (Квик Дек)
- Клик-фальц или Профнастил (профлист)
- Водосточная система (пластик)
- Окна ПВХ KBE или аналог профиль 70мм; двухсторонняя ламинация
- Дверь входная с терморазрывом от производителя РФ . Двери межкомнатные (предоставляем на выбор 3 варианта).
- Электрический теплый пол с привязкой к мебели по всей площади дома
- Монтаж электрики в противопожарной гофре.
- Розетки, выключатели Legrand/Schneider.
- Разводка труб водоснабжения скрытым типом, сшитый полиэтилен REHAU - до 8 точек.
- Разводка труб канализации скрытым типом. До 4 точек
- Использование современных масел для древесины. Окрашенная в цеховых условиях имитация бруса 20х145х6000 или планкен, возможна замена на Кликфальц
- Декоративная подсветка.
Что еще входит в стоимость:
Отправьте свои контакты и мы расчитаем вам смету
Скорее всего вам подойдут следующие проекты домов:
Проект одноэтажного дома Проект 7309 - одноэтажный каркасный дом с 3-я спальнями
Семья с двумя детьми
Дом подходит для:
Дом подходит для:
Проект одноэтажного дома Пригородный, под ключ, ламинат, двери Экошпон, отделка Hauberk, коммуникации, сантехника.
Семья с двумя детьми
Дом подходит для:
Дом подходит для:
Проект одноэтажного дома Проект дома «Гриндельвальд (К-1-77)»
Семья с двумя детьми
Дом подходит для:
Дом подходит для:














