Ваш город:

Проект одноэтажного дома из блоков 81.1

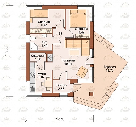
Площадь: 81 м2
Размер: 9,9х7,3
Дом подходит для:
Семья с одним ребенком
Этажей:
1
Стены:
Кровля:
Металлочерепица
Цена:
Оставить заявку
Площадь
81 м 2
Размер дома:
9,9х7,3
Этажей:
1
Спален:
2
Санузел:
1
Гараж:
Нет
Баня:
Нет
Терраса:
Да
Панорамные окна:
Нет
Мастер-спальня:
Нет
Фасады
О проекте
Дом из пенобетона площадью 81 м² предлагает 67 м² жилой площади. Две спальни и санузел создают комфортное пространство для семьи. Теплые стены и светлые интерьеры наполняют дом уютом. Ленточный фундамент обеспечивает устойчивость и долговечность.

Характеристики
  • Общая площадь: 81.1 м2
  • Жилая площадь: 67 м2
  • Количество этажей: 1
  • Гараж: нет
  • Площадь кровли: 88 м2
  • Форма: Квадратные дома
  • Тип кровли: Дома с двускатной крышей
  • Пристрой: Дома с террасой
  • Отделка: Без отделки
  • Фундамент: Дома с ленточным фундаментом
Материалы и перечень работ
  • Мелкозаглубленный ленточный фундамент
  • Внешние стены: Блоки пеногазосиликатные (газоблок) /Керамзитобетонные/Крупноформатный поризованный кирпич (LSR).
  • Перекрытия брус 100х150/200 плита монолитная 200мм арматура А3 Ø 12, Бетон М-300 В22,5 П4 F200 W6/ Плиты перекрытий пустотные 1200*220 тип ПК (ПБ)
  • Связующие материалы; крепежи.
  • Антисептирование бруса и пиломатериалов в среднесуточную плюсовую температуру.
  • Многие наши клиенты вместо временной крыши сразу заказывают обустройство кровли из чистового материала – металлочерепица производство Бельгия или гибкая черепица TEGOLA
  • Окна: Rehau 58
  • Входная дверь: Металлическая 0,6 мм. замок
  • В стоимость не входит
  • В стоимость не входит
  • Мелкозаглубленный ленточный фундамент
  • Внешние стены: Блоки пеногазосиликатные (газоблок) /Керамзитобетонные/Крупноформатный поризованный кирпич (LSR).
  • Перекрытия брус 100х150/200 плита монолитная 200мм арматура А3 Ø 12, Бетон М-300 В22,5 П4 F200 W6/ Плиты перекрытий пустотные 1200*220 тип ПК (ПБ)
  • Связующие материалы; крепежи.
  • Антисептирование бруса и пиломатериалов в среднесуточную плюсовую температуру.
  • Многие наши клиенты вместо временной крыши сразу заказывают обустройство кровли из чистового материала – металлочерепица производство Бельгия или гибкая черепица TEGOLA
  • Окна: Rehau 58
  • Входная дверь: Металлическая 0,6 мм. замок
  • В стоимость не входит
  • В стоимость не входит
Что еще входит в стоимость:
Фото и видеоотчет
Отправьте свои контакты и мы расчитаем вам смету
Прикрепить документ
Скорее всего вам подойдут следующие проекты домов: