Проект одноэтажного дома К-47
Дом подходит для:
Площадь
100 м 2
Размер дома:
8х12,5
Этажей:
1
Спален:
2
Санузел:
1
Гараж:
Нет
Баня:
Нет
Терраса:
Да
Панорамные окна:
Нет
Мастер-спальня:
Нет
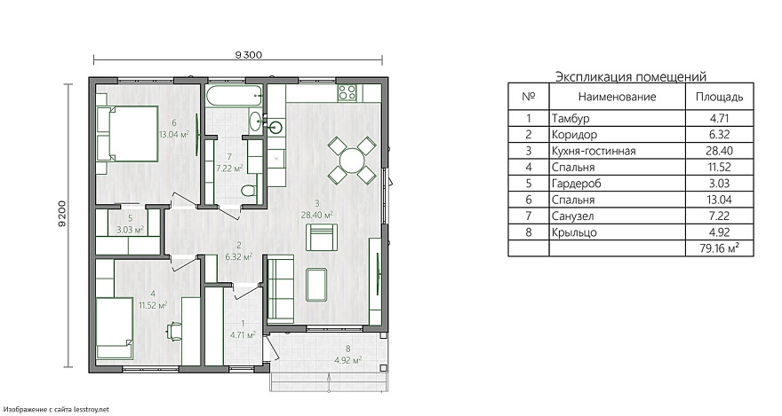
Планировка
Фасады
О проекте
Каркасный дом площадью 100 м² с жилой зоной 88 м² идеален для семьи с одним ребенком. Две спальни и санузел обеспечивают удобство и комфорт. Продуманная планировка и светлые интерьеры создают гармоничное пространство. Отсутствие указанного фундамента компенсируется качеством материалов.Характеристики
- Общая площадь: 100 м2
- Жилая площадь: 88 м2
- Количество этажей: 1
- Гараж: нет
- Площадь кровли: 108 м2
- Форма: Квадратные дома
- Тип кровли: Дома с четырехскатной крышей (вальмовой)
- Пристрой: Дома с террасой
- Отделка: Без отделки
- Отделка фасада: Дома с отделкой имитацией бруса
Материалы и перечень работ
- В стоимость не входит
- Обвязка дома - 1 ряд обрезной брус 100х150мм, 2 ряд обрезная доска 40х150мм
- Перекрытия 1 этажа – обрезная доска 40х150мм с шагом 590мм
- Перегородки 1 этажа – обрезная доска 40х100мм
- Силовой каркас (стены, фронтоны дома) – обрезная доска 40х100мм
- Стропильная система – обрезная доска 40х100мм с шагом 590мм
- Кровля – ондулин (цвет на выбор)
- Обрешетка и контробрешетка кровли – обрезная доска 20х100мм, брусок 20х50мм
- Гидроизоляция кровли – ветрозащитная мембрана Изоспан А
- Черновой пол – обрезная доска 20х100мм
- Окна – деревянные двойного остекления с отливами
- Двери – входная металлическая, внутренние — не предусмотрены
- Отделка плинтусом и наличником включена
- В стоимость не входит
- Внешняя отделка стен – вагонка (камерной сушки), через обрешетку 20х50мм
- Утепление стен, пола, потолка – базальтовые плиты Rockwool 100мм
- В стоимость не входит
- Обвязка дома - 1 ряд обрезной брус 100х150мм, 2 ряд обрезная доска 40х150мм
- Перекрытия 1 этажа – обрезная доска 40х150мм с шагом 590мм
- Перегородки 1 этажа – обрезная доска 40х100мм
- Силовой каркас (стены, фронтоны дома) – обрезная доска 40х100мм
- Стропильная система – обрезная доска 40х100мм с шагом 590мм
- Кровля – ондулин (цвет на выбор)
- Обрешетка и контробрешетка кровли – обрезная доска 20х100мм, брусок 20х50мм
- Гидроизоляция кровли – ветрозащитная мембрана Изоспан А
- Черновой пол – обрезная доска 20х100мм
- Окна – деревянные двойного остекления с отливами
- Двери – входная металлическая, внутренние — не предусмотрены
- Отделка плинтусом и наличником включена
- В стоимость не входит
- Внешняя отделка стен – вагонка (камерной сушки), через обрешетку 20х50мм
- Утепление стен, пола, потолка – базальтовые плиты Rockwool 100мм
Что еще входит в стоимость:
Отправьте свои контакты и мы расчитаем вам смету
Скорее всего вам подойдут следующие проекты домов:
Дом подходит для:
Дом подходит для:
Дом подходит для:










