Проект одноэтажного дома К/Д 149-1,5
Дом подходит для:
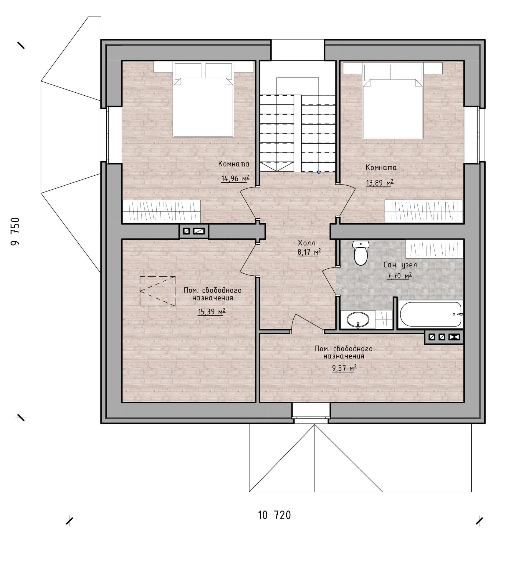
Площадь
149 м 2
Размер дома:
10,7х9,7
Этажей:
1
Спален:
4
Санузел:
2
Гараж:
Нет
Баня:
Нет
Терраса:
Нет
Панорамные окна:
Нет
Мастер-спальня:
Нет
Планировка
Фасады
О проекте
Кирпичный дом площадью 149 м² с жилой зоной 116 м² воплощает добротность и традиции. Одноэтажная планировка с четырьмя спальнями создает атмосферу уюта и защищенности. Просторные помещения наполнены светом, а надежные материалы обеспечивают долговечность. Это идеальное решение для тех, кто ищет гармонию между практичностью и комфортом.Характеристики
- Общая площадь: 149 м2
- Жилая площадь: 116 м2
- Количество этажей: 1
- Гараж: нет
- Площадь кровли: 145 м2
- Отделка: Без отделки
- Фундамент: Дома с плитным фундаментом
Материалы и перечень работ
- Фундамент — монолитная ж/б плита 300 мм, с разводкой системы канализации, водопровода.
- Стены на выбор: камень керамический Porotherm 2/1NF красный 250*120*140 М-150, толщина стены 380мм или керамический блок Porotherm Thermo 380, (250*380*219), марка-М100.
- Перегородки на выбор: 120мм, красный керамический кирпич Мстера марки М-150 или 120мм, керамический блок Porotherm 12, марка М-100.
- Перекрытие — сборные ЖБ плиты 220мм серия ПК.
- Кровля — стропильная система, мембрана супердиффузионная Folder, контробрешетка, обрешетка, металлочерепица Grand Line 0.5мм, Ral 8017, отделка вент шахт дымохода, черновая подшивка свесов кровли.
- В стоимость не входят
- Вентиляция — вентиляция кухни и сан узлов естественная, с подготовкой под установку котла отопления, выводится на кровлю при помощи вент шахт.
- В стоимость не входят
- Фундамент — монолитная ж/б плита 300 мм, с разводкой системы канализации, водопровода.
- Стены на выбор: камень керамический Porotherm 2/1NF красный 250*120*140 М-150, толщина стены 380мм или керамический блок Porotherm Thermo 380, (250*380*219), марка-М100.
- Перегородки на выбор: 120мм, красный керамический кирпич Мстера марки М-150 или 120мм, керамический блок Porotherm 12, марка М-100.
- Перекрытие — сборные ЖБ плиты 220мм серия ПК.
- Кровля — стропильная система, мембрана супердиффузионная Folder, контробрешетка, обрешетка, металлочерепица Grand Line 0.5мм, Ral 8017, отделка вент шахт дымохода, черновая подшивка свесов кровли.
- В стоимость не входят
- Вентиляция — вентиляция кухни и сан узлов естественная, с подготовкой под установку котла отопления, выводится на кровлю при помощи вент шахт.
- В стоимость не входят
Что еще входит в стоимость:
Отправьте свои контакты и мы расчитаем вам смету
Скорее всего вам подойдут следующие проекты домов:
Проект одноэтажного дома К/Д 122,5-1,5
Семья с двумя детьми
Дом подходит для:
Дом подходит для:
Проект одноэтажного дома К/Д 155-1,5
Семья с двумя детьми
Дом подходит для:
Дом подходит для:
Проект одноэтажного дома Бавария
Семья с двумя детьми
Дом подходит для:
Дом подходит для:












