Проект двухэтажного дома Каркасный дом 10х12 (Проект К-85)
Площадь
148 м 2
Размер дома:
Этажей:
2
Спален:
3
Санузел:
0
Гараж:
Нет
Баня:
Нет
Терраса:
Нет
Панорамные окна:
Нет
Мастер-спальня:
Нет
О проекте
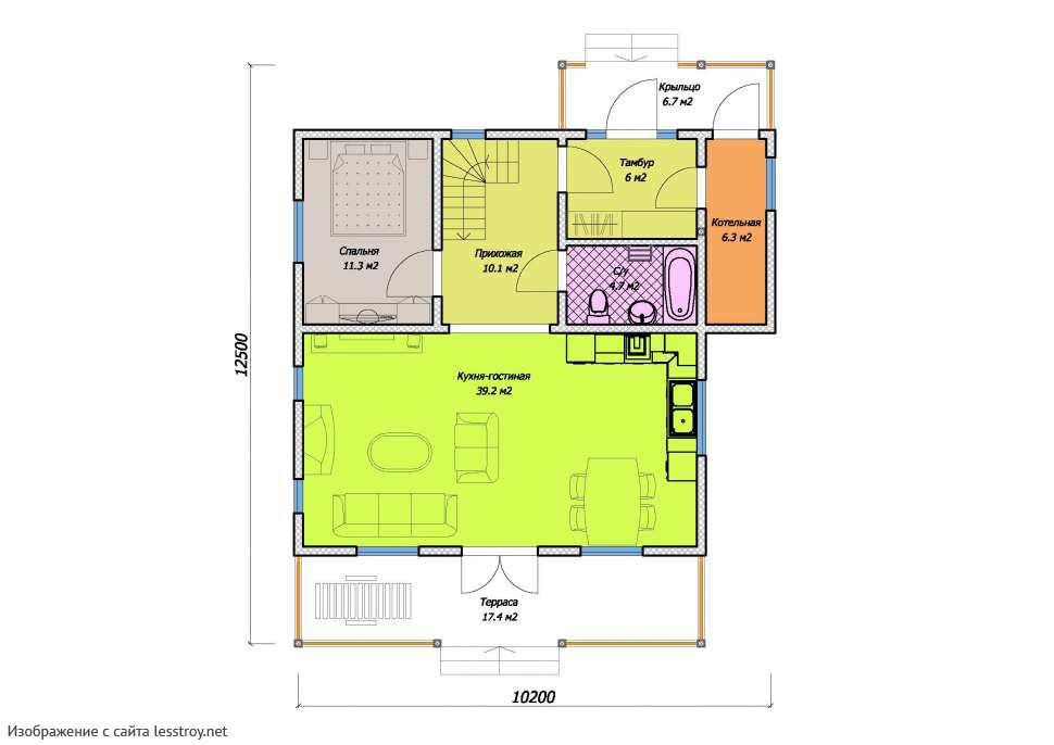
Архитектура, создающая ощущение стабильности без монотонности.Эргономичное пространство на 148 м² радует глаз и душу. Выбор Каркас обусловлен его теплоизоляционными свойствами. Двухэтажная удобная планировка обеспечивает комфортную навигацию внутри дома. В качестве кровли использована металлочерепица — материал, проверенный временем.Характеристики
- Общая площадь: 148 м2
- Количество этажей: 2
- Стиль, разновидность: Дома в ином стиле
- Форма: Прямоугольные дома
- Тип кровли: Дома с двускатной крышей
- Отделка: Без отделки
Отправьте свои контакты и мы расчитаем вам смету
Скорее всего вам подойдут следующие проекты домов:
Проект двухэтажного дома Каркасный дом 8х8 (8 на 8), проект двух этажного дома
Семья с одним ребенком
Дом подходит для:
Дом подходит для:
Дом подходит для:
Дом подходит для:









