Проект двухэтажного дома Каркасный дом 202 м2
Площадь
202 м 2
Размер дома:
Этажей:
2
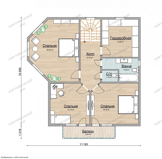
Спален:
3
Санузел:
0
Гараж:
Нет
Баня:
Нет
Терраса:
Нет
Панорамные окна:
Нет
Мастер-спальня:
Нет
О проекте
В пространстве 202 кв.м заключена философия свободы: каркасная конструкция обеспечивает легкость и модерновую эстетику. Удобное зонирование открывает выбор между семейными традициями и личными хобби. Современный материал стен гарантирует быстроту возведения и долговечность. В доме гармонично живут свет, пространство и воздух. Такое жильё будет радовать своими возможностями для изменений и обновлений.Характеристики
- Общая площадь: 202 м2
- Количество этажей: 2
- Стиль, разновидность: Дома в стиле Модерн
- Форма: Прямоугольные дома
- Тип кровли: Дома с четырехскатной крышей (вальмовой)
- Отделка: Без отделки
Отправьте свои контакты и мы расчитаем вам смету
Скорее всего вам подойдут следующие проекты домов:
Дом подходит для:
Дом подходит для:
Дом подходит для:










