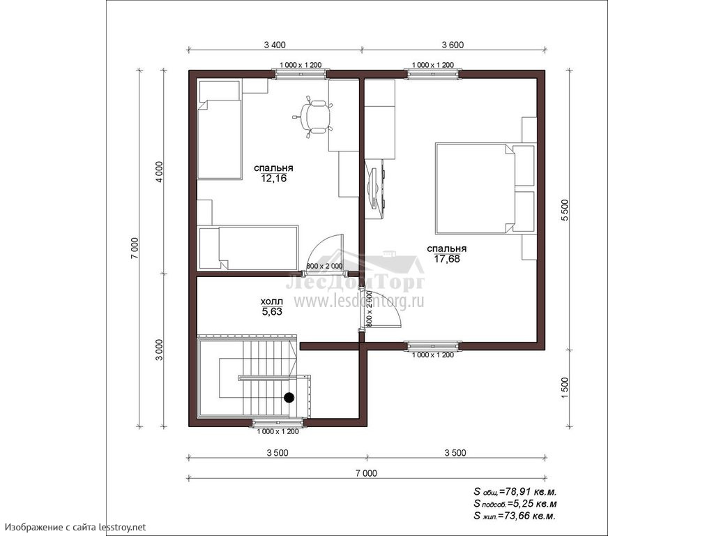
Проект двухэтажного дома Каркасный дом 7.0 х 7.0 м «Лотос-2К»
Площадь
79 м 2
Размер дома:
7x7
Этажей:
2
Спален:
3
Санузел:
0
Гараж:
Нет
Баня:
Нет
Терраса:
Нет
Панорамные окна:
Нет
Мастер-спальня:
Нет
О проекте
Каркасный дом площадью 79 м² в русском стиле с тремя спальнями — это гармония традиций и комфорта. Два этажа делают пространство функциональным, а ондулиновая кровля завершает образ.Характеристики
- Общая площадь: 79 м2
- Количество этажей: 2
- Стиль, разновидность: Дома в стиле Русский
- Форма: Прямоугольные дома
- Тип кровли: Дома с двускатной крышей
- Отделка: Без отделки
- Размер: 7x7










