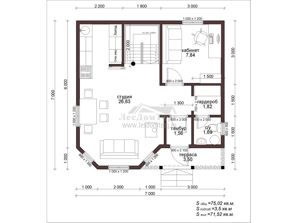
Проект двухэтажного дома Каркасный дом 7.0x7.0 м «Флагман-2К»
Площадь
75 м 2
Размер дома:
7x7
Этажей:
2
Спален:
3
Санузел:
0
Гараж:
Нет
Баня:
Нет
Терраса:
Нет
Панорамные окна:
Нет
Мастер-спальня:
Нет
О проекте
Компактный и уютный каркасный дом Флагман-2К площадью 75 м² — отличное решение для дачного отдыха. Легкие стены каркасной конструкции делают его теплым и энергоэффективным. Несмотря на скромные размеры, здесь есть все необходимое для комфорта. Отличный выбор для тех, кто ценит практичность.Характеристики
- Общая площадь: 75 м2
- Количество этажей: 2
- Стиль, разновидность: Дома в стиле Русский
- Форма: Прямоугольные дома
- Тип кровли: Дома с многощипцовой крышей
- Отделка: Без отделки
- Размер: 7x7










