Проект одноэтажного дома Каркасный дом 9.5х12 (Проект К1-7)
Площадь
105 м 2
Размер дома:
Этажей:
1
Спален:
2
Санузел:
0
Гараж:
Нет
Баня:
Нет
Терраса:
Нет
Панорамные окна:
Нет
Мастер-спальня:
Нет
О проекте
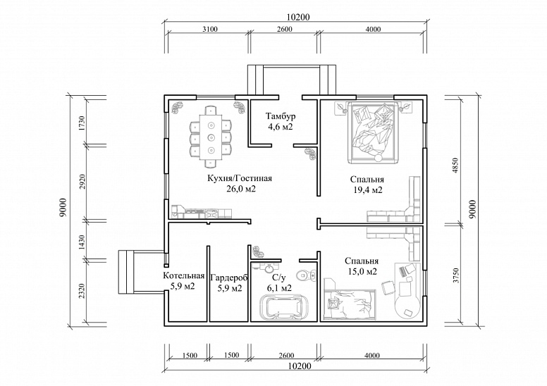
Здесь утро начинается с солнечных бликов на паркете. 105 м² — метраж, с которым легко жить. Материал кровли — металлочерепица, что добавляет зданию индивидуальность. Это одноэтажная структура, которая организует пространство максимально эффективно. Наличие 2 спальни удовлетворит запросы семьи с детьми.Характеристики
- Общая площадь: 105 м2
- Количество этажей: 1
- Стиль, разновидность: Дома в ином стиле
- Форма: Прямоугольные дома
- Тип кровли: Дома с двускатной крышей
- Отделка: Без отделки
Отправьте свои контакты и мы расчитаем вам смету
Скорее всего вам подойдут следующие проекты домов:
Дом подходит для:
Дом подходит для:
Дом подходит для:








