Проект одноэтажного дома Каркасный дом Эдельвейс
Площадь
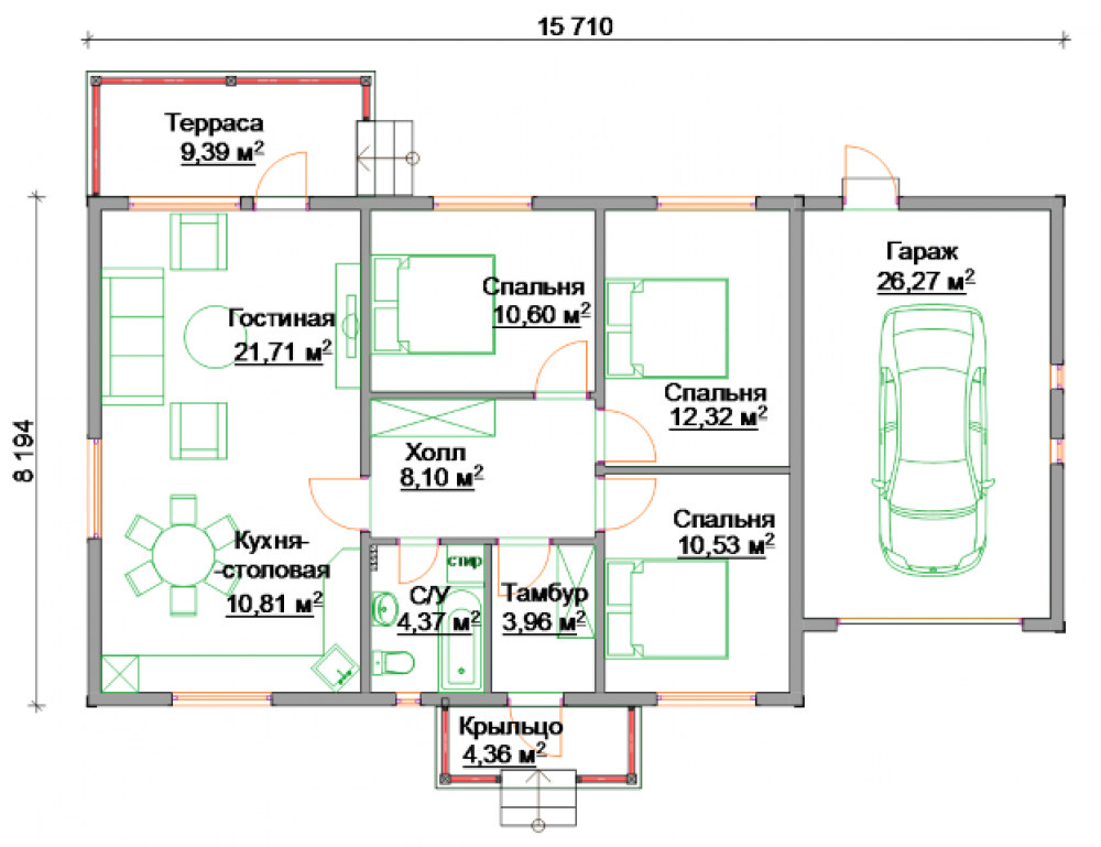
132 м 2
Размер дома:
8x15
Этажей:
1
Спален:
3
Санузел:
0
Гараж:
Нет
Баня:
Нет
Терраса:
Нет
Панорамные окна:
Нет
Мастер-спальня:
Нет
О проекте
Здесь всё продумано до мелочей — от входа до террасы. Простота и функциональность заключены в 132 м². Выбор Каркас обусловлен его теплоизоляционными свойствами. Дом спроектирован в духе дома в классическом стиле. Одноэтажная рациональная планировка делает зонирование более логичным.Характеристики
- Общая площадь: 132 м2
- Количество этажей: 1
- Стиль, разновидность: Дома в ином стиле
- Форма: Прямоугольные дома
- Тип кровли: Дома с иной крышей
- Отделка: Без отделки
- Размер: 8x15
Отправьте свои контакты и мы расчитаем вам смету
Скорее всего вам подойдут следующие проекты домов:
Дом подходит для:
Дом подходит для:
Дом подходит для:














