Проект двухэтажного дома Каркасный дом с мансардой и верандой под ключ 6х9 Д-34
Площадь
113 м 2
Размер дома:
9x9
Этажей:
2
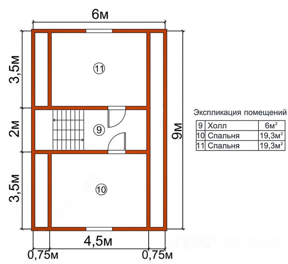
Спален:
4
Санузел:
0
Гараж:
Нет
Баня:
Нет
Терраса:
Нет
Панорамные окна:
Нет
Мастер-спальня:
Нет
О проекте
Ванная комната, превращающая утренние сборы в приятный ритуал. 113 м² обеспечивают лёгкость и мобильность в повседневной жизни. Проект включает 4 спальни — удобно для семьи. Конструкция из Каркас обеспечивает прочность и долговечность. Крыша из ондулин подчёркивает современный облик дома.Характеристики
- Общая площадь: 113 м2
- Количество этажей: 2
- Стиль, разновидность: Дома в стиле Модерн
- Форма: Прямоугольные дома
- Тип кровли: Дома с двускатной крышей
- Отделка: Без отделки
- Размер: 9x9





