Проект одноэтажного дома Кастл
Дом подходит для:
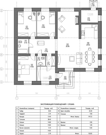
Площадь
147 м 2
Размер дома:
12х14
Этажей:
1
Спален:
3
Санузел:
2
Гараж:
Нет
Баня:
Нет
Терраса:
Да
Панорамные окна:
Нет
Мастер-спальня:
Нет
Планировка
Характеристики
- Общая площадь: 147 м2
- Жилая площадь: 113 м2
- Количество этажей: 1
- Гараж: нет
- Площадь кровли: 154 м2
- Форма: Квадратные дома
- Тип кровли: Дома с четырехскатной крышей (вальмовой)
- Пристрой: Дома с террасой
- Отделка: С черновой отделкой
- Отделка фасада: Дома с кирпичной отделкой
Материалы и перечень работ
- В стоимость не входит
- Силовой несущий каркас со стропильной системой: Доска сухая строганная 145 / 195 мм
- Перекрестное утепление кровли, стен, межэтажных перекрытий: Теплоизоляция из базальтовой ваты Paroc, 150 / 200 / 250 мм
- Пароизоляция для защиты ограждающих конструкций
- Кровельное покрытие: Клик фальц, металлочерепица, профлист (толщина стали 0,45 / 0,50 мм);
- Водосточная система Технониколь / Гранд лайн.
- Окна пластиковые ПВХ: профиль 65 / 70 мм, двухкамерный стеклопакет, москитные сетки
- Входная дверь: Металлическая утеплённая; Входная группа, профиль ПВХ 65 /70 мм, двухкамерный стеклопакет.
- Откосы, обналичка окон и дверных приёмов
- В стоимость не входит
- Отделка фасада: Кирпич; Планкен с грунтовкой и окраской в 2 слоя .
- В стоимость не входит
- Силовой несущий каркас со стропильной системой: Доска сухая строганная 145 / 195 мм
- Перекрестное утепление кровли, стен, межэтажных перекрытий: Теплоизоляция из базальтовой ваты Paroc, 150 / 200 / 250 мм
- Пароизоляция для защиты ограждающих конструкций
- Кровельное покрытие: Клик фальц, металлочерепица, профлист (толщина стали 0,45 / 0,50 мм);
- Водосточная система Технониколь / Гранд лайн.
- Окна пластиковые ПВХ: профиль 65 / 70 мм, двухкамерный стеклопакет, москитные сетки
- Входная дверь: Металлическая утеплённая; Входная группа, профиль ПВХ 65 /70 мм, двухкамерный стеклопакет.
- Откосы, обналичка окон и дверных приёмов
- В стоимость не входит
- Отделка фасада: Кирпич; Планкен с грунтовкой и окраской в 2 слоя .
Что еще входит в стоимость:
Отправьте свои контакты и мы расчитаем вам смету
Скорее всего вам подойдут следующие проекты домов:
Проект одноэтажного дома Кудрино
Семья с двумя детьми
Дом подходит для:
Дом подходит для:
Проект одноэтажного дома ТК-2
Семья с двумя детьми
Дом подходит для:
Дом подходит для:
Проект одноэтажного дома Палики
Семья с двумя детьми
Дом подходит для:
Дом подходит для:












