Проект двухэтажного дома КД-12
Дом подходит для:
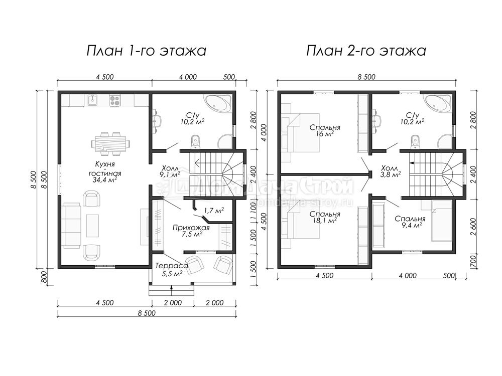
Площадь
120 м 2
Размер дома:
9x9
Этажей:
2
Спален:
3
Санузел:
2
Гараж:
Нет
Баня:
Нет
Терраса:
Нет
Панорамные окна:
Нет
Мастер-спальня:
Нет
Планировка
Характеристики
- Общая площадь: 120 м2
- Жилая площадь: 94 м2
- Количество этажей: 2
- Гараж: нет
- Площадь кровли: 126 м2
- Отделка: Без отделки
- Размер: 9x9
Материалы и перечень работ
- В стоимость не входит
- Основание дома: 1 ряд из бруса сечением 145х145мм. (Обвязка свай)
- Лаги пола 1-го и 2-го этажа: Строганная доска сечением 40х195мм. Шаг между лагами 590мм
- Черновой пол: Строганная доска 18х90мм 1 сорт
- Ветро-влагозащитная мембрана Ондутис про А120
- Вертикальные стойки «Строганная доска 40х145мм» шаг между стойками 590мм
- Стропильная нога «Строганная доска сечением 40х195мм»
- Потолочный ветровой ригель «Строганная доска сечением 40х195мм»
- Под кровельная мембрана. Ветровлагозащита Ондутис про А 120
- Контр-рейка брусок 40х40мм
- Кровля. Металлочерепица (цвет на выбор)
- Окна ПВХ
- Дверь входная металлическая
- В стоимость не входит
- Ветро-влагозащитная мембрана Ондутис про А120
- Конт-рейка «Строганный брусок 20х40мм»
- Имитация бруса (карельский профиль «20х145мм»
- Обналичка окон. Строганная доска сечением «20х100мм»
- Углы дома. Строганная доска сечением «20х150мм»
- В стоимость не входит
- Основание дома: 1 ряд из бруса сечением 145х145мм. (Обвязка свай)
- Лаги пола 1-го и 2-го этажа: Строганная доска сечением 40х195мм. Шаг между лагами 590мм
- Черновой пол: Строганная доска 18х90мм 1 сорт
- Ветро-влагозащитная мембрана Ондутис про А120
- Вертикальные стойки «Строганная доска 40х145мм» шаг между стойками 590мм
- Стропильная нога «Строганная доска сечением 40х195мм»
- Потолочный ветровой ригель «Строганная доска сечением 40х195мм»
- Под кровельная мембрана. Ветровлагозащита Ондутис про А 120
- Контр-рейка брусок 40х40мм
- Кровля. Металлочерепица (цвет на выбор)
- Окна ПВХ
- Дверь входная металлическая
- В стоимость не входит
- Ветро-влагозащитная мембрана Ондутис про А120
- Конт-рейка «Строганный брусок 20х40мм»
- Имитация бруса (карельский профиль «20х145мм»
- Обналичка окон. Строганная доска сечением «20х100мм»
- Углы дома. Строганная доска сечением «20х150мм»
Что еще входит в стоимость:
Отправьте свои контакты и мы расчитаем вам смету
Скорее всего вам подойдут следующие проекты домов:
Дом подходит для:
Дом подходит для:
Дом подходит для:













