Проект двухэтажного дома Хайлас 175
Площадь
175 м 2
Размер дома:
Этажей:
2
Спален:
3
Санузел:
0
Гараж:
Нет
Баня:
Нет
Терраса:
Нет
Панорамные окна:
Нет
Мастер-спальня:
Нет
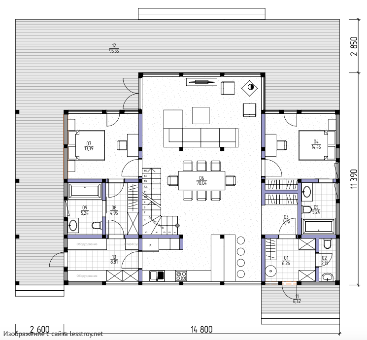
О проекте
Пространство, в котором душа находит покой, а сердце — радость. Чёткая логика планировки на 175 м². Архитектура выполнена в стиле дома в стиле фахверк. В качестве кровли использована металлочерепица — материал, проверенный временем. В доме предусмотрено 3 спальни, что важно для комфорта.Характеристики
- Общая площадь: 175 м2
- Количество этажей: 2
- Стиль, разновидность: Дома в стиле Фахверк
- Форма: Прямоугольные дома
- Тип кровли: Дома с мансардной крышей
- Отделка: Без отделки
Отправьте свои контакты и мы расчитаем вам смету
Скорее всего вам подойдут следующие проекты домов:
Дом подходит для:
Дом подходит для:
Проект двухэтажного дома Премиум
Семья с двумя детьми
Дом подходит для:
Дом подходит для:












