Ваш город:

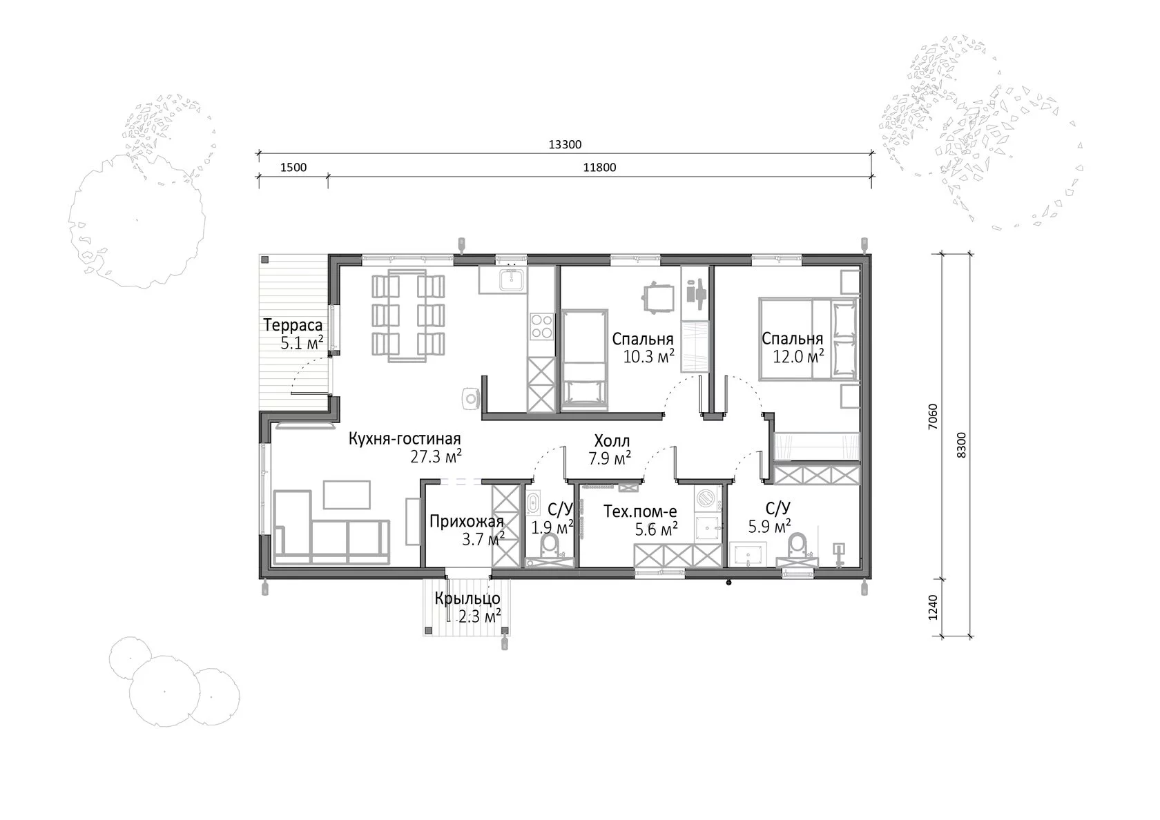
Проект одноэтажного дома Хютте 80

Площадь: 81 м2
Размер: 13,3 x 8,3
Дом подходит для:
Семья с одним ребенком
Этажей:
1
Стены:
Кровля:
Металлочерепица
Цена:
Оставить заявку
Площадь
81 м 2
Размер дома:
13,3 x 8,3
Этажей:
1
Спален:
2
Санузел:
1
Гараж:
Нет
Баня:
Нет
Терраса:
Нет
Панорамные окна:
Нет
Мастер-спальня:
Нет
Фасады
О проекте
Компактный дом Хютте 80 площадью 81 м² с жилыми 68 м² — это уют и практичность. Каркасные стены создают легкую атмосферу, а металлочерепица на крыше гарантирует надежность. Две спальни и санузел делают его идеальным для небольшой семьи. Утеплённая шведская плита завершает образ этого добротного жилья.

Характеристики
  • Общая площадь: 81 м2
  • Жилая площадь: 68 м2
  • Количество этажей: 1
  • Гараж: нет
  • Высота дома: 5 м
  • Площадь кровли: 85 м2
  • Отделка: Без отделки
  • Фундамент: Дома с плитным фундаментом
Материалы и перечень работ
  • Песчаное основание 300мм
  • Закладные под коммуникации
  • Тёплые водяные полы
  • Трубы ХВС/ГВС и канализации
  • Дренажная и ливневая канализации
  • Комплект заводских панелей
  • Отдельные конструктивные элементы
  • Укладка кровельного покрытия
  • Монтаж ливневой системы и снегозадержания
  • Временные строительная лестница и дверь
  • Стеновые панели с готовым фасадом и окнами
  • Не предусмотрена
  • Монтаж доборных фасадных элементов
  • Песчаное основание 300мм
  • Закладные под коммуникации
  • Тёплые водяные полы
  • Трубы ХВС/ГВС и канализации
  • Дренажная и ливневая канализации
  • Комплект заводских панелей
  • Отдельные конструктивные элементы
  • Укладка кровельного покрытия
  • Монтаж ливневой системы и снегозадержания
  • Временные строительная лестница и дверь
  • Стеновые панели с готовым фасадом и окнами
  • Не предусмотрена
  • Монтаж доборных фасадных элементов
Что еще входит в стоимость:
Фото и видеоотчет
Отправьте свои контакты и мы расчитаем вам смету
Прикрепить документ
Скорее всего вам подойдут следующие проекты домов: