Проект одноэтажного дома Кира
Дом подходит для:
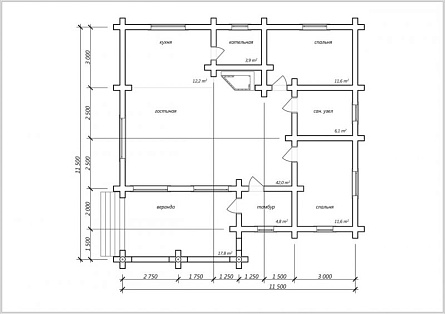
Площадь
110 м 2
Размер дома:
11x11
Этажей:
1
Спален:
2
Санузел:
1
Гараж:
Нет
Баня:
Нет
Терраса:
Да
Панорамные окна:
Нет
Мастер-спальня:
Нет
Планировка
Характеристики
- Общая площадь: 110 м2
- Жилая площадь: 88 м2
- Количество этажей: 1
- Гараж: нет
- Площадь кровли: 119 м2
- Форма: Квадратные дома
- Тип кровли: Дома с двускатной крышей
- Пристрой: Дома с верандой
- Отделка: С черновой отделкой
- Размер: 11x11
- Фундамент: Дома с ленточным фундаментом
Материалы и перечень работ
- Ленточный фундамент
- Гидроизоляция фундамента - верхняя поверхность основания промазывается битумной мастикой, затем на нее накладывается несколько слоев рубероида.
- Бетон М-300 (B22,5) с сертификтом качества;
- Рабочая арматура d12 мм класса АIII;
- Ростверк (лента): ширина 300мм., высота 600мм.;
- Сруб (наружные внутренние стены, фронтоны) собираются из бревна средним диаметром 240 мм (диапазон 220-260 мм.);
- Типы стыков бревен на выбор: «в обло» / «в чашу» /«в лапу»;
- Между венцами бревен в 2 слоя прокладывается «джутовое волокно» или «льноватин» толщиной 10мм. Джут крепится строительным степлером;
- Монтируются усиленные лаги цокольного и межэтажного перекрытия.
- Лаги изготавливаются из доски 100х200 мм, с шагом не более 580 мм
- Металлочерепица с типом покрытия "Викинг или "Монтеррей" с возможностью выбрать цветовую палитру.
- Мауэрлат по всему периметру несущих конструкций;
- Стропильная система выполняется из доски 50х200 мм и обрабатывается огнебиозащитным покрытием;
- Обрешетка выполняется из доски 50х100мм;
- Пароизоляция мембранного типа
- Оконные системы на выбор: Rehau Delight / Exprof Profecta (71) / Proplex
- Профиль 5-ти камерный, толщиной 70 мм., белого цвета, с противомаскитными сетками.
- Стеклопакет 2-х камерный, толщиной 32мм.
- Входная металлическая дверь произведена в России, имеет 4 класс устойчивости к взлому и установленный утеплитель зимнего типа. В межкомнатных проемах применяются ламинированные конструкции с необходимой фурнитурой.
- Фурнитура ROTO NT
- В стоимость не входит
- В стоимость не входит
- Ленточный фундамент
- Гидроизоляция фундамента - верхняя поверхность основания промазывается битумной мастикой, затем на нее накладывается несколько слоев рубероида.
- Бетон М-300 (B22,5) с сертификтом качества;
- Рабочая арматура d12 мм класса АIII;
- Ростверк (лента): ширина 300мм., высота 600мм.;
- Сруб (наружные внутренние стены, фронтоны) собираются из бревна средним диаметром 240 мм (диапазон 220-260 мм.);
- Типы стыков бревен на выбор: «в обло» / «в чашу» /«в лапу»;
- Между венцами бревен в 2 слоя прокладывается «джутовое волокно» или «льноватин» толщиной 10мм. Джут крепится строительным степлером;
- Монтируются усиленные лаги цокольного и межэтажного перекрытия.
- Лаги изготавливаются из доски 100х200 мм, с шагом не более 580 мм
- Металлочерепица с типом покрытия "Викинг или "Монтеррей" с возможностью выбрать цветовую палитру.
- Мауэрлат по всему периметру несущих конструкций;
- Стропильная система выполняется из доски 50х200 мм и обрабатывается огнебиозащитным покрытием;
- Обрешетка выполняется из доски 50х100мм;
- Пароизоляция мембранного типа
- Оконные системы на выбор: Rehau Delight / Exprof Profecta (71) / Proplex
- Профиль 5-ти камерный, толщиной 70 мм., белого цвета, с противомаскитными сетками.
- Стеклопакет 2-х камерный, толщиной 32мм.
- Входная металлическая дверь произведена в России, имеет 4 класс устойчивости к взлому и установленный утеплитель зимнего типа. В межкомнатных проемах применяются ламинированные конструкции с необходимой фурнитурой.
- Фурнитура ROTO NT
- В стоимость не входит
- В стоимость не входит
Что еще входит в стоимость:
Отправьте свои контакты и мы расчитаем вам смету
Скорее всего вам подойдут следующие проекты домов:
Дом подходит для:
Проект одноэтажного дома Проект гостевого дома в таёжном стиле СЛОБОДА, диаметр 380 мм
Семья с одним ребенком
Дом подходит для:
Дом подходит для:
Дом подходит для:



