Проект одноэтажного дома Кирпичный дом 1 этаж / 90 м. кв
Площадь
90 м 2
Размер дома:
Этажей:
1
Спален:
2
Санузел:
0
Гараж:
Нет
Баня:
Нет
Терраса:
Нет
Панорамные окна:
Нет
Мастер-спальня:
Нет
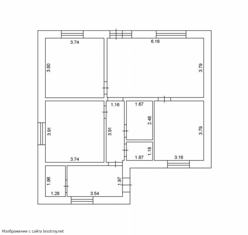
О проекте
Компактный кирпичный дом площадью 90 м² с одной спальней идеален для небольшой семьи. Металлочерепичная кровля обеспечивает защиту от непогоды. Кирпичные стены гарантируют долговечность и тепло. Проект сочетает в себе функциональность и уют.Характеристики
- Общая площадь: 90 м2
- Количество этажей: 1
- Стиль, разновидность: Дома в ином стиле
- Форма: Прямоугольные дома
- Тип кровли: Дома с четырехскатной крышей (вальмовой)
- Отделка: Без отделки
Отправьте свои контакты и мы расчитаем вам смету
Скорее всего вам подойдут следующие проекты домов:
Проект одноэтажного дома Джуана
Семья с двумя детьми
Дом подходит для:
Дом подходит для:






